HOTEL FOR SALE IN RADHIME!
HOTEL FOR SALE IN RADHIME!
HOTEL FOR SALE IN RADHIME!
HOTEL FOR SALE IN RADHIME!
HOTEL FOR SALE IN RADHIME!
Price upon request.
For Sale 03 October 2025

HOTEL FOR SALE IN RADHIME!

Rradhime, Vlore

  • DSH-068544
  • 2470 m2
  • 31 Beds
  • 31 Baths
  • Floor 4
  • 12 Views
Description

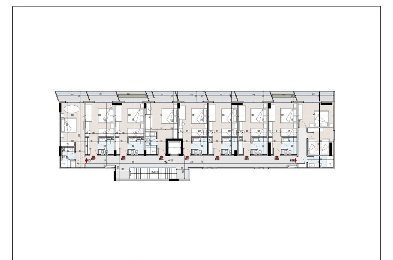
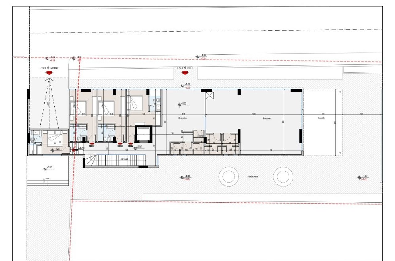
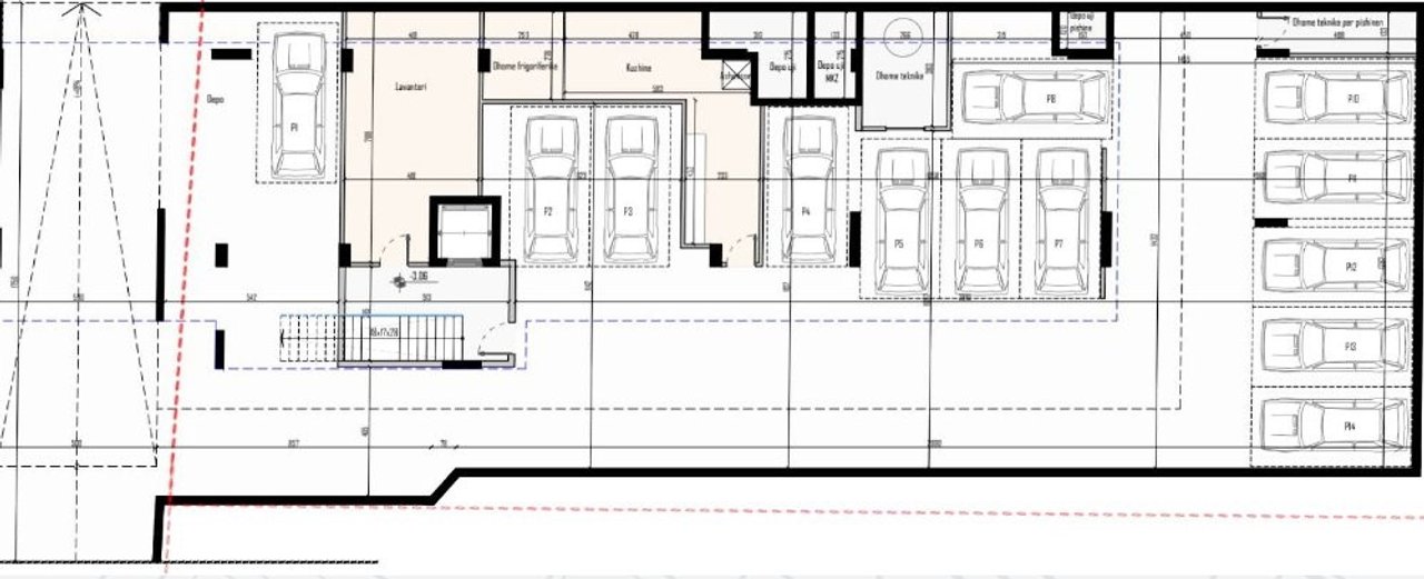
For sale: 4-story hotel with usable terrace, 1 basement floor, swimming pool, playground, and surrounding wall, in Radhime. The hotel, located within a complex designed for hotels and apartments, is under construction. It is organized into four above-ground floors and one basement floor. - Basement floor (-1) has an area of 685 m2 and is designed for parking. - Ground floor (0) with an area of 320 m2 is organized as follows: - 4 rooms - 4 toilets - Reception - Service area (bar, restaurant) - Floors 1, 2, and 3 each have an equal area of 366 m2 and are organized as follows: - 9 rooms - 9 toilets The hotel is very close to the sea and the latest project being developed, Lungomare Radhime - Orikum. It is sold completed according to the approved project. For more information or property accompaniment, please contact us!

Additional Details

  • Year Built: 2025

Map Location

Have Question? Get in touch!

Mortgage Calculator
%
%
Years
Amortization Month Payment Principal Paid Interest Paid Total Interest Balance

It's too late for a phone call. Please write us on WhatsApp or call us tomorrow from hour 07:00 - 21:00