2+1 apartment for sale in Astir!
105,000 € (1,206 € / m²)
For Sale 07 January 2026

2+1 apartment for sale in Astir!

Rruga Sokrat Miho, Tirane

  • DSH-116058
  • 87 m2
  • 2 Beds
  • 1 Bath
  • 1 Living rooms
  • Floor 5
  • 132 Views
Description

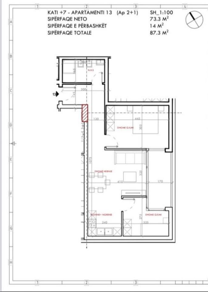
Apartment 2+1 for sale Astir Sokrat Miho Street!

Information about the apartment:

* Net area: 71.3m²
* Total area: 87.3m²
* 5th floor

Layout:

* Corridor
* Kitchen area
* Living room
* 2 Bedrooms
* 1 Bathroom
* 1 Balcony

Other features:

• Orientation: East
• Completion at the end of 2028

Price: €105,000 €1200 per m²

To visit, contact us at phone number: 0686728179

Additional Details

  • Is uninhabited

Have Question? Get in touch!

Mortgage Calculator
%
%
Years
Amortization Month Payment Principal Paid Interest Paid Total Interest Balance

It's too late for a phone call. Please write us on WhatsApp or call us tomorrow from hour 07:00 - 21:00