Apartment For Sale 1+1 In Paskuqan (ID B110562) Tirana
68,600 €
For Sale 2 hours ago

Apartment For Sale 1+1 In Paskuqan (ID B110562) Tirana

Ringside Residences, Tirane

  • DSH-191889
  • 54 m2
  • 1 Bed
  • 1 Bath
  • 1 Living rooms
  • Floor 4
  • 3.4 km from center
  • 3 Views
Description

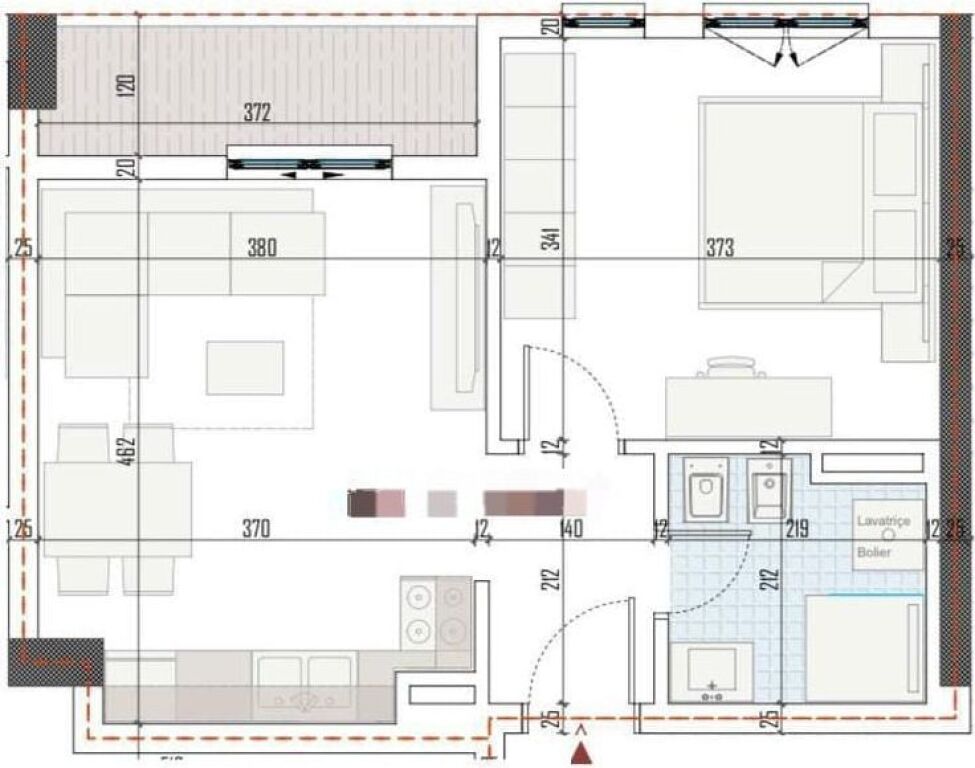
In Paskuqan, Lidhja e Prizrenit Street, in the Ring Side complex, a 1+1 apartment is for sale, with a total gross area of 54.87 m2 and a net area of 47.51 m2 IN MORTGAGE PROCESS, 4th floor, new building, with elevator, under construction finishing at the end of 2027. G.T.
Agency service fee 1% of the sale value
For sale 68,600 euros

Map Location

Have Question? Get in touch!

Mortgage Calculator
%
%
Years
Amortization Month Payment Principal Paid Interest Paid Total Interest Balance

It's too late for a phone call. Please write us on WhatsApp or call us tomorrow from hour 07:00 - 18:55