Appartamento 1+1 in vendita – Paskuqan, vicino al Grande Anello!
59,700 € (1,066 € / m²)
In vendita 01 novembre 2025

Appartamento 1+1 in vendita – Paskuqan, vicino al Grande Anello!

Paskuqan, Kamez

  • DSH-082674
  • 56 m2
  • 1 Letto
  • 1 Bagno
  • 1 Soggiorni
  • Piano 6
  • 105 Visite

In costruzione

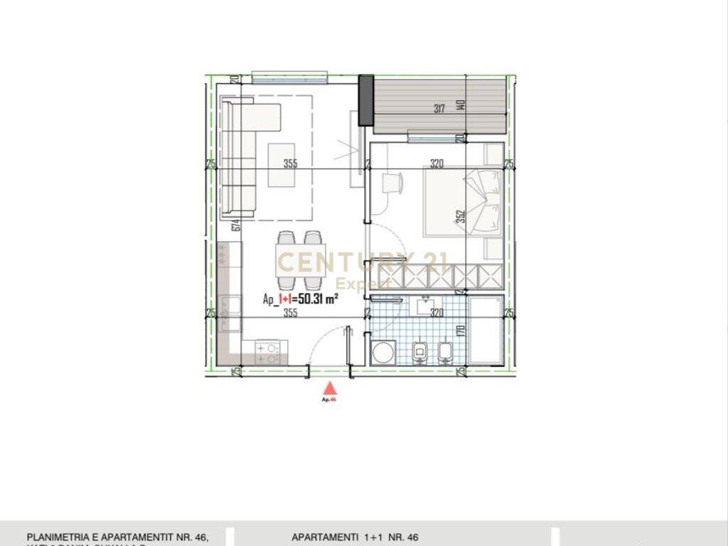
Descrizione

L'appartamento si trova al 6° piano di un nuovo edificio di 7 piani, offrendo un ambiente moderno e confortevole per la vita familiare.
Organizzazione interna:
1 camera da letto
Soggiorno con cucina integrata
Corridoio distributore
1 bagno
Balcone
Caratteristiche:
Edificio nuovo e ben mantenuto
Posizione favorevole vicino alla Grande Anello
Ideale per residenza personale o investimento
Per maggiori informazioni o visita alla proprietà, contattaci!

Ulteriori dettagli

  • Non arredato
  • Ha l'ascensore
  • 0m dal centro

Posizione sulla mappa

Scuole vicine

Gjimnazi Isa Boletini
Liceo
120m
Kopshti Nr. 15
Scuola dell’infanzia
141m
Çerdhja Nr. 4, Hapi i pare
Asilo nido
222m
Le distanze sono misurate in linea retta. I percorsi a piedi possono variare e la posizione della proprietà potrebbe non essere perfettamente precisa.

Hai domande? Contattaci!

Calcolatore di mutuo
%
%
Anni
Mese di ammortamento Pagamento Capitale pagato Interessi pagati Interessi totali Saldo

È troppo tardi per una telefonata. Scrivici su WhatsApp o chiamaci domani dalle ore 07:00 - 21:00.