Locale Commerciale in Vendita - Via Rrapo Hekali - Occasione
387,000 € (1,935 € / m²)
In vendita 5 giorni fa

Locale Commerciale in Vendita - Via Rrapo Hekali - Occasione

Rruga Rrapo Hekali, Tirane

  • DSH-198831
  • 200 m2
  • 2 Bagni
  • 4 Visite
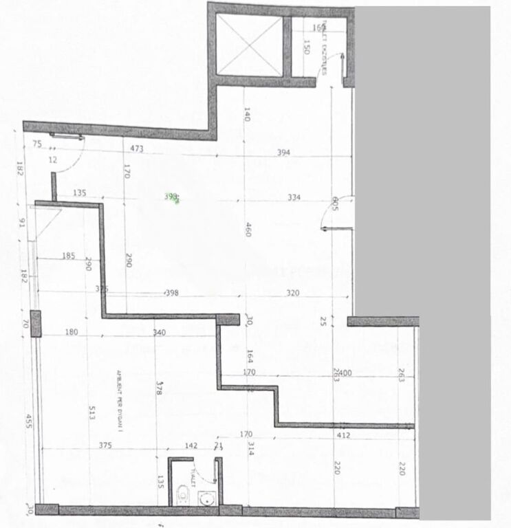
Descrizione

Locale commerciale in vendita in via Rrapo Hekali, sopra il centro Kristal, in una zona molto popolata.
* Il locale è molto ben organizzato con una pianta regolare.
* C'è solo una colonna centrale che offre la possibilità di organizzare lo spazio a piacimento.
* Con vetrate di 15 metri che offrono una ottima opportunità pubblicitaria.
* Ha accesso alla strada principale.
* Adatto a qualsiasi tipo di attività o Airbnb.
* Spazio interno 116m2 + 14m2 area comune + 70m2 veranda utilizzabile, altezza 4,2 m. ha 2 bagni.
* Dotato di ipoteca.
* Prezzo 2350€ trattabile

Ulteriori dettagli

  • Anno di costruzione: 1990 - 2000
  • Precedentemente disabitato
  • 2.3km dal centro

Trasporto pubblico

Stazioni e linee di trasporto pubblico vicino alla proprietà

PIÙ VICINO

Stazione - Rrapo Hekali

1A
Selitë – Allias
1B
Kodra e Diellit – Allias
100m lontano
1 min a piedi

Le distanze sono misurate in linea retta. I percorsi a piedi possono variare e la posizione della proprietà potrebbe non essere perfettamente precisa.

Posizione sulla mappa

Scuole vicine

Çerdhja Nr. 33, Princesh Huria
Asilo nido
368m
Le distanze sono misurate in linea retta. I percorsi a piedi possono variare e la posizione della proprietà potrebbe non essere perfettamente precisa.

Hai domande? Contattaci!

Calcolatore di mutuo
%
%
Anni
Mese di ammortamento Pagamento Capitale pagato Interessi pagati Interessi totali Saldo

È troppo tardi per una telefonata. Scrivici su WhatsApp o chiamaci domani dalle ore 07:00 - 21:00.