OFFER! 2+1+Veranda apartment for sale at Colonnade Residence, Laprakë!
OFFER! 2+1+Veranda apartment for sale at Colonnade Residence, Laprakë!
228,865 € (1,788 € / m²)
For Sale 29 November 2025

OFFER! 2+1+Veranda apartment for sale at Colonnade Residence, Laprakë!

Colonnade Residence, Laprakë, Tirane

  • DSH-071920
  • 128 m2
  • 2 Beds
  • 2 Baths
  • 1 Living rooms
  • Floor 3
  • 39 Views
Description

✦ PROPERTY DETAILS:
─────────────
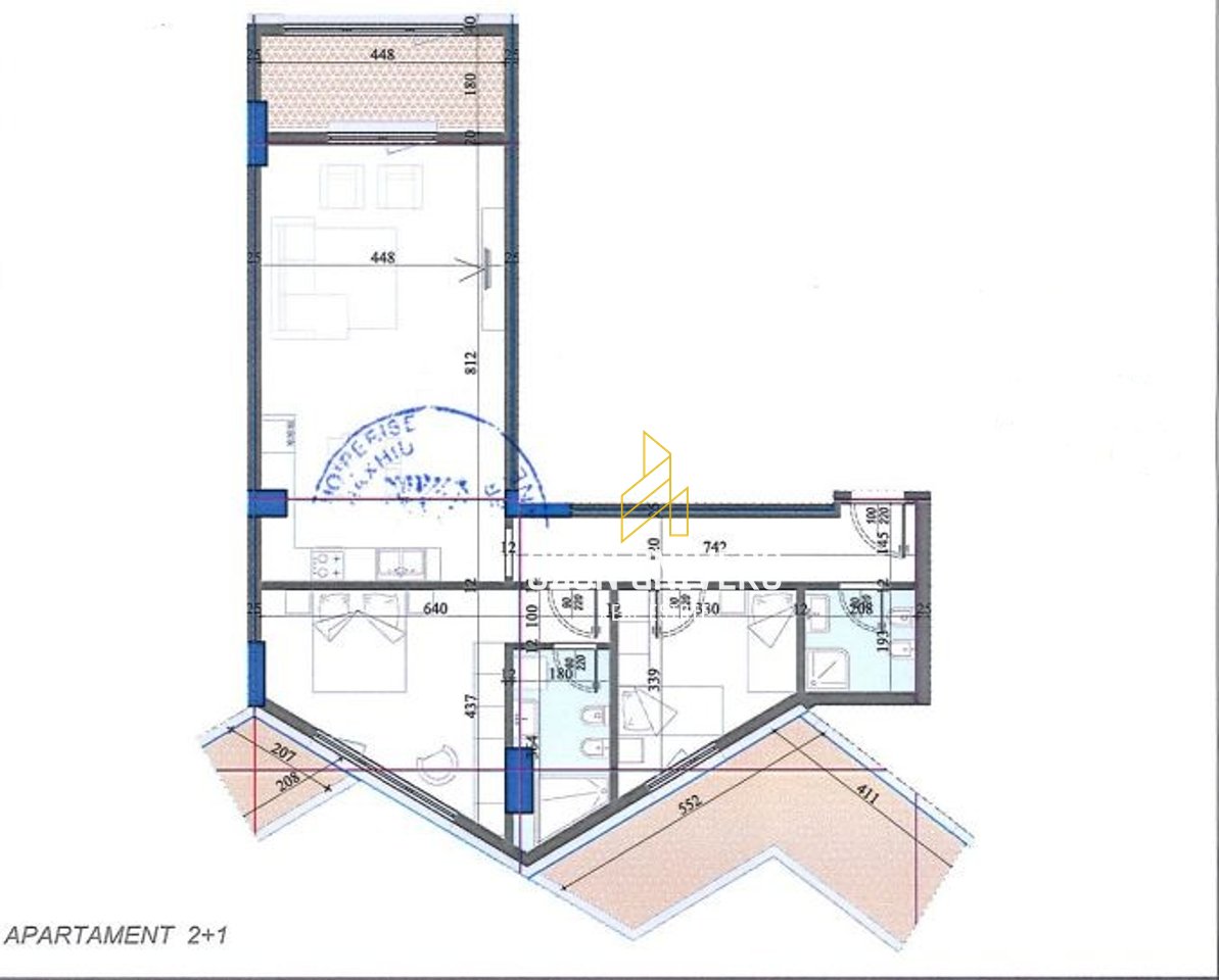
• Typology: 2+1+2
• Net area: 106.0 m²
• Common area: 22.3 m²
• Total area: 128.3 m²
• Veranda area: 20.2 m²
• Floor: 3
• Residence: Colonnade Residence, Laprakë – Tirana
• Phase: Under construction (brick phase)

✦ INTERNAL ORGANIZATION:
──────────────────
• Living room with kitchen and balcony access
• 2 bedrooms (master bedroom with en-suite bathroom)
• 2 bathrooms
• Distribution corridor
• Veranda

✦ FEATURES:
────────────
• Quality construction with contemporary standards
• Strategic location, suitable for living or investment

✦ AREA / RESIDENCE:
────
Colonnade Residence is a modern residence in the heart of Laprakë, with new infrastructure and high construction standards.
Offers:
• Security and good management
• Green spaces and nearby services
• Quick access to the center of Tirana and the Grand Ring Road

✦ PRICE:
────
• 228,865 €

Additional Details

  • Is uninhabited

Have Question? Get in touch!

Mortgage Calculator
%
%
Years
Amortization Month Payment Principal Paid Interest Paid Total Interest Balance

It's too late for a phone call. Please write us on WhatsApp or call us tomorrow from hour 09:00 - 19:00