78,700 €
For Sale 12 hours ago

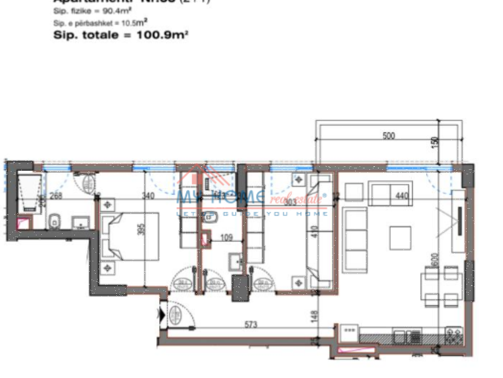
Opportunity! 2+1 Apartment for Sale in Kamez

Bulevardi Nënë Tereza, Kamez

  • 100 m2
  • 22 Views
Description

Kamez, Nene Tereza Boulevard, near the Bathore intersection, we have for sale a 2+1 type apartment, in a new complex, under construction. The apartment has an area of 100.9 m2, 8th floor. Currently, it is in the phase of internal masonry partition - hydraulic phase. They come for sale at a clearing price of 780 euros/m2!
For sale 78700 Euro

Location

Have Question? Get in touch!

Have Question? Get in touch!

Mortgage Calculator
%
%
Years
Amortization Month Payment Principal Paid Interest Paid Total Interest Balance

It's too late for a phone call. Please write us on WhatsApp or call us tomorrow from hour 07:00 - 21:00

office-address