109,946 €
In vendita 04 ottobre 2025

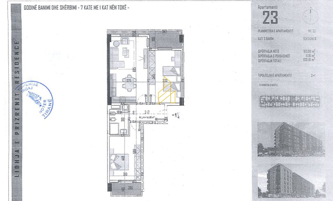
OCCASIONE! Appartamento 2+1+2 in vendita presso Lidhja e Prizrenit Residence, Paskuqan!

Lidhja e Prizrenit, Paskuqan, Tirane

  • 105 m2
  • 2 Letti
  • 1 Bagno
  • 1 Soggiorni
  • Piano 3
  • 73 Visite
Descrizione

✦DETTAGLI DELLA PROPRIETÀ:
─────────────
• Tipologia: 2+1
• Superficie netta: 92,00 m²
• Superficie lorda: 104,71 m²
• Piano: 3° residenziale
• Residenza: Lidhja e Prizrenit, Paskuqan

✦ORGANIZZAZIONE INTERNA:
──────────────────

• 1 ampio soggiorno con cucina inclusa
• 2 camere da letto (matrimoniale + bambini)
• 1 bagno
• 2 balconi:
  – Primo balcone: accesso dal soggiorno e dalla camera dei bambini
  – Secondo balcone: accesso dalla camera principale (matrimoniale)

✦CARATTERISTICHE:
────────────

Adatto per:
• Abitazione familiare confortevole
• Investimento con rendimento stabile
• Ambiente organizzato in modo funzionale

• Costruzione di qualità e ben mantenuta
• Ascensore e aree comuni sistemate
• Illuminazione naturale in ogni ambiente
• Isolamento termico e acustico
• Pianta pratica e sfruttabile
• Fase di intonaci e muratura

✦ZONA:
────
• Parte della Residenza Lidhja e Prizrenit, nella zona di Paskuqan
• Zona in rapido sviluppo, con comunità familiare e infrastrutture complete
• Facile accesso a:
  – Grande Anello
  – Trasporto pubblico
  – Mercato, scuole, asili e servizi quotidiani

✦PREZZO:
────
• 109.946 €

Hai domande? Contattaci!

Calcolatore di mutuo
%
%
Anni
Mese di ammortamento Pagamento Capitale pagato Interessi pagati Interessi totali Saldo

È troppo tardi per una telefonata. Scrivici su WhatsApp o chiamaci domani dalle ore 09:00 - 19:00.

office-address