Vendesi appartamento 1+1 a Paskuqan
Vendesi appartamento 1+1 a Paskuqan
Vendesi appartamento 1+1 a Paskuqan
71,334 € (1,150 € / m²)
In vendita 11 aprile 2026

Vendesi appartamento 1+1 a Paskuqan

Paskuqan Rezidenca Belfiore1, Kamez

  • DSH-118322
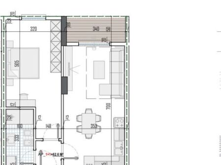
  • 62 m2
  • 1 Letto
  • 1 Bagno
  • 1 Soggiorni
  • Piano 7
  • 55 Visite
Descrizione

Vendesi appartamento 1+1 a Paskuqan.

Superficie dell'appartamento
62,03 m2

L'appartamento si trova al 7° piano residenziale

Si compone di:
* soggiorno + cucina
* 1 camera da letto
* 1 bagno
* balcone

Il palazzo è in costruzione (fase mattoni)
Termina a dicembre 2026.

Posizione: Paskuqan, (Belfiore 1 Residenza.)

Prezzo di vendita: 71.334 euro

C'è qualcosa di sbagliato?

Prezzo falso, truffa o foto false — segnalacelo.

Ulteriori dettagli

  • Precedentemente disabitato

Hai domande? Contattaci!

Calcolatore di mutuo
%
%
Anni
Mese di ammortamento Pagamento Capitale pagato Interessi pagati Interessi totali Saldo

È troppo tardi per una telefonata. Scrivici su WhatsApp o chiamaci domani dalle ore 07:00 - 21:00.