Appartamento 2+1 in vendita, Ex Campo di Aviazione, Pepa
Appartamento 2+1 in vendita, Ex Campo di Aviazione, Pepa
155,000 € (1,648 € / m²)
In vendita 1 ora fa

Appartamento 2+1 in vendita, Ex Campo di Aviazione, Pepa

Parku Ish-Fusha e Aviacionit, Tirane

  • DSH-212922
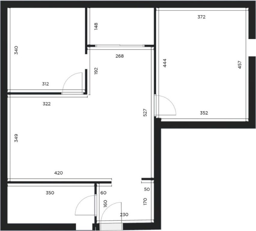
  • 94 m2
  • 2 Letti
  • 1 Bagno
  • 1 Soggiorni
  • 1 Visite

In costruzione

Completamento previsto: 2027

Descrizione

🏡 Appartamento 2+1 in Vendita – Pepa, Ex Campo di Aviazione
In una zona richiesta e in continuo sviluppo, si offre in vendita un appartamento 2+1 ideale sia per abitazione che per investimento.
📐 Dettagli principali:
* Tipologia: 2+1
* Superficie totale: 93,6 m²
* Orientamento: Ovest – illuminazione naturale nel pomeriggio
* Fase: Intonacatura (possibilità di personalizzazione secondo desiderio)
* Posizione: Pepa, Ex Campo di Aviazione
💰 Prezzo: 155.000 €
L'appartamento si trova in una zona con rapido accesso alle strade principali, vicino a servizi, istituzioni e strutture quotidiane.
📞 Per maggiori informazioni o visita alla proprietà, contattami!

Ulteriori dettagli

  • Balcone
  • Ha l'ascensore
  • 2.3km dal centro

Trasporto pubblico

Stazioni e linee di trasporto pubblico vicino alla proprietà

PIÙ VICINO

Stazione - Simon Gjoni

10C
Rrethrrotullimi Shkozë – Ish-fusha e aviacionit
76m lontano
1 min a piedi

Le distanze sono misurate in linea retta. I percorsi a piedi possono variare e la posizione della proprietà potrebbe non essere perfettamente precisa.

Posizione sulla mappa

Scuole vicine

Kopshti Nr. 64, Xixëllonjat
Scuola dell’infanzia
344m
Shkolla 9-vjeçare Dhora Leka
Scuola media
432m
Le distanze sono misurate in linea retta. I percorsi a piedi possono variare e la posizione della proprietà potrebbe non essere perfettamente precisa.

Hai domande? Contattaci!

Calcolatore di mutuo
%
%
Anni
Mese di ammortamento Pagamento Capitale pagato Interessi pagati Interessi totali Saldo

È troppo tardi per una telefonata. Scrivici su WhatsApp o chiamaci domani dalle ore 07:00 - 21:00.