800 € / nĂ« muaj
Me qera 1 orë më parë

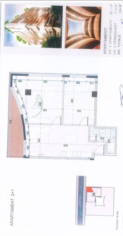
🏱 Jepet me qira ambient 2+1 pĂ«r zyra – Te Mine Peza, TiranĂ«

Mine Peza, Tirane

  • 104 m2
  • 2 Dhoma gjumi
  • 1 Tualet
  • 1 Kuzhine
Pershkrimi

🏱 Jepet me qira ambient 2+1 pĂ«r zyra – Te Mine Peza, TiranĂ«
📐 SipĂ«rfaqe: 104 mÂČ
Ambienti ndodhet në një zonë shumë të mirë dhe të qetë, ideal për zyra, studio konsulence, apo biznese të tjera shërbimi. Ka ndarje funksionale 2+1, me hapësira të bollshme, dritë natyrale dhe përfundime cilësore.
✅ NdĂ«rtim i mirĂ«mbajtur
✅ LehtĂ«si parkimi nĂ« zonĂ«
✅ PranĂ« qendrĂ«s dhe institucioneve kryesore.

đŸ’¶ Çmimi: 800 € / muaj.

Kontaktoni

Na vjen keq, është shumë vonë për një telefonatë. Ju lutemi na kontaktoni përmes WhatsApp ose telefononi nesër nga ora 07:00 - 21:00.

office-address