768,000 €
Për shitje 1 ditë më parë

Apartament 3+2 Për Shitje në Lungomare, Vlorë - 768,000€ | 322.98 m²

Lungomare, Vlore

  • 323 m2
  • 3 Dhoma gjumi
  • 2 Tualete
  • 1 Kuzhine
  • Kati 1
  • 1.7 km nga qendra
  • 3 Shikime
Përshkrimi

Apartament modern 3+1 në kompleksin ekskluziv Vlora Marina – një nga adresat më të kërkuara bregdetare në Shqipëri.

Ky apartament ofron një organizim funksional, hapësira të bollshme dhe pamje të mrekullueshme drejt portit dhe detit, duke e bërë ideal si për banim familjar ashtu edhe si investim afatgjatë.

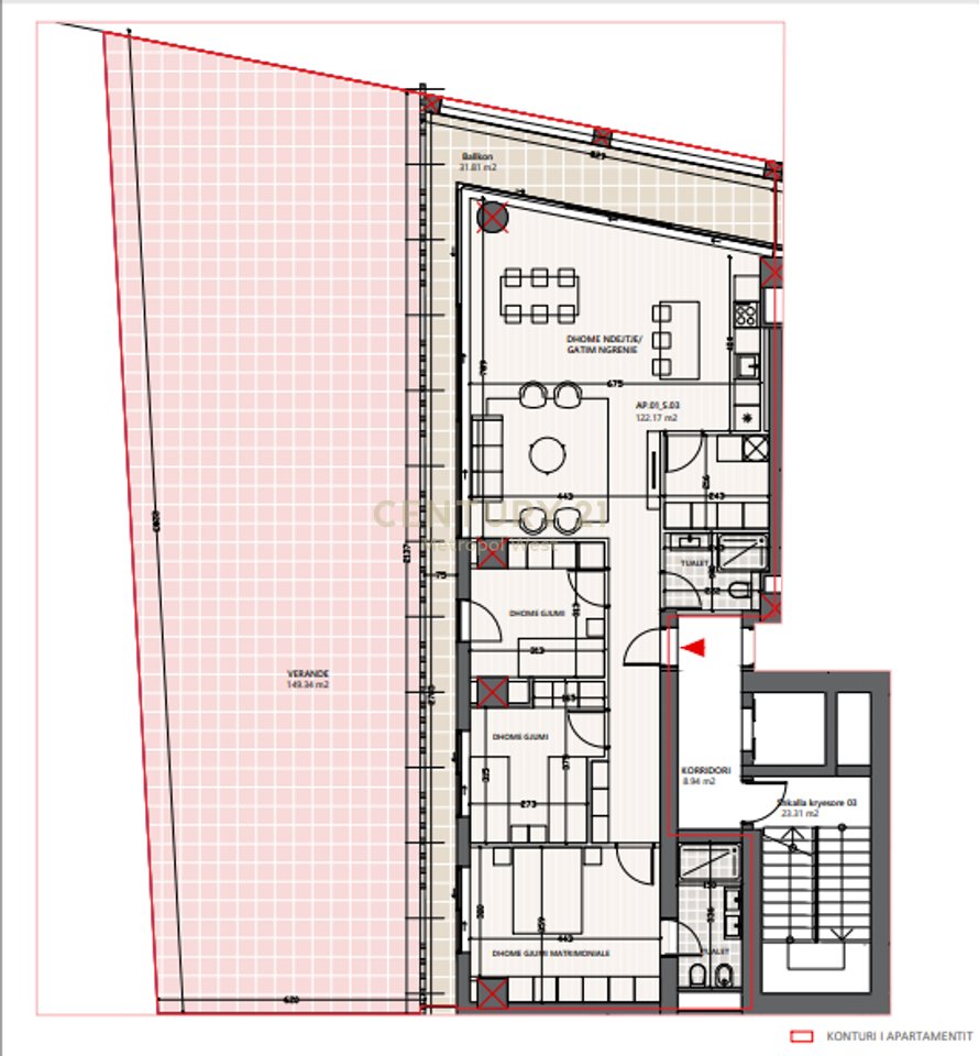
• Sipërfaqe neto: 153.98 m²
• Sipërfaqe bruto: 322.98 m²
• Sipërfaqe VERANDE: 149.34 m²

Organizimi i brendshëm

Salloni i ndritshëm me kuzhinë të përbashkët dhe akses direkt në verandë të madhe me pamje fantastike.

Dhoma matrimoniale me hapësirë komode dhe dalje në verandë.

Dy dhoma gjumi shtesë me dimensione ideale për fëmijë, zyra apo mysafirë.

Dy tualete bashkëkohore të pozicionuar në mënyrë praktike.

Korridor shpërndarës që ofron intimitet dhe funksionalitet maksimal.

Përparësitë e kompleksit Vlora Marina

Arkitekturë moderne dhe ndërtim me standarde të larta.

Pozicionim direkt në vijën e parë të detit.

Marina e dedikuar, ambiente shërbimi dhe hapësira publike të konceptuara për stil jetese premium.

Pamje panoramike detare dhe akses në promenadë.

Ky apartament përfaqëson një mundësi të rrallë për të jetuar ose investuar në një nga projektet më prestigjioze në bregdetin shqiptar.

Vendndodhja në hartë

Kontaktoni

Llogaritësi i kredisë
%
%
Vite
Muaji Payment Principali Interesi Totali i interesit Gjendja e mbetur

Na vjen keq, është shumë vonë për një telefonatë. Ju lutemi na kontaktoni përmes WhatsApp ose telefononi nesër nga ora 07:00 - 21:00.

office-address