Cerca case in vendita in Via Bardhyl - lista completa delle case in vendita.

128 Annunci trovati
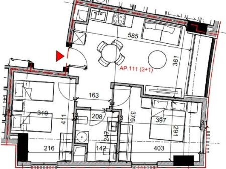
1+1, convertibile in 2+1, via Bardhyl, 4° piano senza ascensore, 150 mila euro
150,000 €

1+1, convertibile in 2+1, via Bardhyl, 4° piano senza ascensore, 150 mila euro

  • 1
  • 1
  • 62 m2
  • 18 ore fa

🏡 Casa in vendita Via Bardhyl » Rruga Bardhyl

1+1 cucina+1 soggiorno separato+1 balcone Adattabile a 2+1 Sup 62 m2 4° piano esistente senza ascensore 📍via bardhyl a bordo strada 💶prezzo 150 mila euro 📠con certificato di proprietà

Vendesi 2 distributori di benzina in via Bardhyl
83,000 €

Vendesi 2 distributori di benzina in via Bardhyl

  • 1
  • 1
  • 30 m2
  • 19 ore fa

🏡 Casa in vendita Via Bardhyl » Rruga Bardhyl

In vendita 2 monolocali in via 4 Dëshmorët, primo piano, rialzato da terra, ciascuno con una superficie di 30 m², con certificati di proprietà nuovi, palazzo ristrutturato, esistente con mattoni rossi. Prezzo 85000 € uno, 83000 € l'altro

APPARTAMENTO 1+1 IN VENDITA IN VIA BARDHYL - RESIDENZA MONOLITH
148,000 €

APPARTAMENTO 1+1 IN VENDITA IN VIA BARDHYL - RESIDENZA MONOLITH

  • 1
  • 1
  • 63 m2
  • 1 giorno fa

🏡 Casa in vendita Via Bardhyl » Rruga Bardhyl

Appartamento 1+1 in vendita presso Rezidenca Monolith . Organizzato : Soggiorno & area cucina Camera da letto Corridoio distributore Bagno Balcone . La costruzione è caratterizzata da alti standard di qualità, architettura contemporanea e organizzazione funzionale degli spazi. La residenza è un complesso dedicato a servizi e abitazioni, progettato per offrire comfort, sicurezza e una vita urbana di qualità. Dettagli della residenza: - Nuova residenza con standard costruttivi contemporanei - Edificio di servizio e residenziale - Altezza dell'edificio: da 2 a 18 piani fuori terra - 4 piani di parcheggio sotterraneo - Organizzazione moderna e infrastruttura ben pianificata - Ottima opportunità per residenza e investimento a lungo termine Per maggiori informazioni contattaci .

Appartamento 1+1 In Vendita in Via Bardhyl, Tirana - 145.000€
145,000 €

Appartamento 1+1 In Vendita in Via Bardhyl, Tirana - 145.000€

  • 1
  • 4
  • 63 m2
  • 2 giorni fa

🏡 Casa in vendita Via Bardhyl » Rruga Bardhyl

Questo appartamento 1+1 si trova al 15° piano di un edificio di 18 piani nella zona di Rruga Bardhyl, Tirana, ed è in vendita al prezzo di 145.000€. • Superficie lorda: 62,9 m² • Piano: 15 di 18 • 1 camera da letto, 1 bagno • Adatto per abitazione o investimento in una delle zone richieste di Tirana • Per maggiori informazioni, vi preghiamo di contattarci!

APPARTAMENTO 1+1 IN VENDITA IN VIA BARDHYL - RESIDENZA MONOLITH
145,000 €

APPARTAMENTO 1+1 IN VENDITA IN VIA BARDHYL - RESIDENZA MONOLITH

  • 1
  • 1
  • 63 m2
  • 2 giorni fa

🏡 Casa in vendita Via Bardhyl » Rruga Bardhyl

Appartamento 1+1 in vendita presso Rezidenca Monolith . Organizzato come : Soggiorno e area cucina Camera da letto Corridoio distributore Bagno Balcone . L'edificio è caratterizzato da alti standard di qualità, architettura contemporanea e organizzazione funzionale degli spazi. La residenza è un complesso dedicato a servizi e abitazioni, progettato per offrire comfort, sicurezza e una vita urbana di qualità. Dettagli della Residenza: - Residenza nuova con standard costruttivi contemporanei - Edificio di servizio e residenziale - Altezza edificio: da 2 a 18 piani sopra il terreno - 4 piani di parcheggio sotterraneo - Organizzazione moderna e infrastruttura ben pianificata - Ottima opportunità per abitazione e investimento a lungo termine Per maggiori informazioni contattaci .

Residenza Monolith, monolocale in vendita
81,310 €

Residenza Monolith, monolocale in vendita

  • 1
  • 1
  • 35 m2
  • 20 maggio 2026

🏡 Casa in vendita Via Bardhyl » Monolith Residence

Residenza Monolith, monolocale in vendita Dettagli della proprietà • Tipologia: Monolocale • Superficie lorda: 34,6 m² • Superficie netta: 28,3 m² • Piano: 3° • Prezzo di vendita: 2.350 € / m² • Totale: 81.310 € • In fase iniziale di costruzione La Residenza Monolith è un complesso residenziale e di servizi moderno, progettato con elevati standard costruttivi, architettura contemporanea e organizzazione funzionale degli spazi. • Edificio residenziale e di servizi • Altezza: da 2 a 18 piani fuori terra • 4 piani di parcheggio sotterraneo • Infrastruttura moderna e ben pianificata Per ulteriori informazioni o prenotazioni, contattaci.

APPARTAMENTO 1+1 VICINO ALLA SCUOLA ROSSA!!
140,000 €

APPARTAMENTO 1+1 VICINO ALLA SCUOLA ROSSA!!

  • 1
  • 1
  • 69 m2
  • 20 maggio 2026

🏡 Casa in vendita Via Bardhyl » Rruga Bardhyl

Appartamento in vendita in un edificio esistente vicino alla Scuola Rossa, via Riza Cerova. L'appartamento si trova al quarto piano residenziale di un edificio di cinque piani. È organizzato in un corridoio di distribuzione, soggiorno con accesso al balcone, camera da letto, cucina separata e bagno con ventilazione naturale. Copre una superficie lorda di 69,1 metri quadrati in un edificio in mattoni rossi. Orientamento nord-ovest. Con certificato di proprietà. Per maggiori informazioni, contattaci.

OCCASIONE! APPARTAMENTO 1+1 + 18 m² VERANDA – VIA "BARDHYL"!
130,000 €

OCCASIONE! APPARTAMENTO 1+1 + 18 m² VERANDA – VIA "BARDHYL"!

  • 1
  • 1
  • 80 m2
  • 20 maggio 2026

🏡 Casa in vendita Via Bardhyl » Rruga Bardhyl

Appartamento in vendita, situato in una delle zone più richieste di Tirana, ideale sia per abitazione che per investimento. Dettagli della proprietà: • Superficie totale: 80,25 m² * Superficie interna: 54,93 m² * Superficie comune: 7,69 m² * Veranda: 17,63 m² (super spazio relax) * Piano: 6 * Costruito nel 2020 * Con certificato di proprietà L'appartamento offre un'organizzazione funzionale, illuminazione naturale per tutto il giorno e una veranda perfetta per relax o investimento in Airbnb! Posizione strategica: • Vicino agli ospedali principali! * Vicino alla Facoltà di Medicina e Farmacia * Solo 10 minuti dal centro di Tirana * Su strada principale, con accesso massimo Una proprietà che combina posizione, comfort e alto potenziale di investimento. Prezzo: 130.000 € 📲 Contatta ora per una visita alla proprietà! Select138778

OCCASIONE! VIA BARDHYL - APPARTAMENTO IN VENDITA 106,77 m2 - 22,62 m² SUPER VERANDA !!
165,000 €

OCCASIONE! VIA BARDHYL - APPARTAMENTO IN VENDITA 106,77 m2 - 22,62 m² SUPER VERANDA !!

  • 1
  • 2
  • 107 m2
  • 20 maggio 2026

🏡 Casa in vendita Via Bardhyl » Rruga Bardhyl

In vendita un appartamento 1+1 con 2 bagni e veranda di 22,62 mq, con organizzazione perfetta e spazi ampi, situato in una delle zone più richieste per abitare e investire a Tirana, facilmente convertibile in 2+1 + Veranda di 22,62 mq! ✨ Questo appartamento è la combinazione ideale tra comfort interno e lusso esterno, grazie alla grande veranda che trasforma ogni momento in un'esperienza di relax. 📐 Dettagli della proprietà: Superficie netta: 73,81 m² Superficie comune: 10,34 m² Veranda: 22,62 m² Superficie totale: 106,77 m² ✨ Perché scegliere questa proprietà? ✔️ Organizzazione molto funzionale e moderna ✔️ Illuminazione naturale per tutto il giorno ✔️ Grande veranda – ideale per relax, cena o investimento Airbnb ✔️ Spazi ampi – sensazione di appartamento più grande ✔️ Alto potenziale di aumento del valore 📍 Posizione strategica: Vicino a ogni struttura importante come: 🏥 Ospedali 🎓 Facoltà 🛍️ Supermercati 🚗 Accesso rapido al centro di Tirana 💶 Investimento intelligente oggi – profitto sicuro domani! 📲 Non perdere questa opportunità! Contatta ora per una visita alla proprietà!

Monolith Residence, appartamento con una camera da letto in vendita
154,865 €

Monolith Residence, appartamento con una camera da letto in vendita

  • 1
  • 1
  • 66 m2
  • 13 maggio 2026

🏡 Casa in vendita Via Bardhyl » Monolith Residence

Monolith Residence, appartamento con una camera da letto in vendita Appartamento con una camera da letto in vendita in uno dei progetti più moderni attualmente in fase di sviluppo, presso Monolith Residence, a Tirana. Dettagli dell'immobile • Tipologia: 1+1 • Superficie lorda: 65,9 m² • Superficie netta: 53,9 m² • Piano: 7° • Prezzo di vendita: € 2.350 / m² • Totale: € 154.865 • In fase di costruzione iniziale Monolith Residence è un moderno complesso residenziale e di servizi, progettato con elevati standard costruttivi, architettura contemporanea e organizzazione funzionale degli spazi. • Edificio residenziale e di servizi • Altezza: da 2 a 18 piani fuori terra • 4 piani di parcheggio sotterraneo • Infrastruttura moderna e ben pianificata Vantaggi • Investimento sicuro a lungo termine • Elevato comfort e sicurezza • Vita urbana moderna • Organizzazione ottimale degli spazi Per maggiori informazioni o per prenotare, contattateci.

Residenza Monolith – Via Bardhyl, appartamento 2+1 in vendita
203,510 €

Residenza Monolith – Via Bardhyl, appartamento 2+1 in vendita

  • 2
  • 1
  • 87 m2
  • 13 maggio 2026

🏡 Casa in vendita Via Bardhyl » Monolith Residence

Residenza Monolith – Via Bardhyl, appartamento 2+1 in vendita È offerto in vendita un appartamento 2+1, situato in uno dei progetti di sviluppo urbano più recenti e moderni di Tirana, la Residenza Monolith, in Via Bardhyl. Questo progetto si caratterizza per alti standard costruttivi, architettura contemporanea e organizzazione funzionale degli spazi, offrendo comfort e qualità della vita per i residenti. Dettagli dell'appartamento • Tipologia: 2+1 • Superficie lorda: 86,6 m² • Superficie netta: 70,9 m² • Piano: 4 • Immobile in fase di costruzione Prezzo di vendita: 2350 €/m² Totale: 203.510 € L'appartamento rappresenta una scelta ideale per abitazione familiare o investimento a lungo termine, grazie alla posizione e alla qualità del progetto. Caratteristiche della Residenza Monolith: • Residenza nuova con standard costruttivi contemporanei • Complesso residenziale e di servizi • Altezza dell'edificio: da 2 a 18 piani fuori terra • 4 piani di parcheggio interrato • Infrastruttura moderna e organizzazione ben pianificata • Progetto progettato per sicurezza, comfort e qualità della vita urbana La zona offre facile accesso alle strade principali, servizi, istituzioni e attività commerciali, rendendo questa proprietà molto favorevole per vivere. Per ulteriori informazioni o per una consulenza, vi preghiamo di contattarci.

VIA BARDHYL – VENDITA APPARTAMENTO 2+1+2
238,300 €

VIA BARDHYL – VENDITA APPARTAMENTO 2+1+2

  • 2
  • 2
  • 101 m2
  • 11 maggio 2026

🏡 Casa in vendita Via Bardhyl » Rruga Bardhyl

Appartamento 2+1+2 in vendita, situato in una delle residenze più nuove e moderne dello sviluppo urbano, Residenza Monolith. La costruzione è caratterizzata da alti standard di qualità, architettura contemporanea e organizzazione funzionale degli spazi. La residenza è un complesso dedicato a servizi e abitazioni, progettato per offrire comfort, sicurezza e una vita urbana di qualità. Dettagli della Residenza: - Residenza nuova con standard di costruzione contemporanei - Edificio di servizio e abitazione - Altezza dell'edificio: da 2 a 18 piani sopra il terreno - 4 piani di parcheggio sotterraneo - Organizzazione moderna e infrastruttura ben pianificata - Ottima opportunità per abitazione e investimento a lungo termine Dettagli dell'organizzazione: Organizzazione: - Soggiorno insieme all'area cucina - Camera matrimoniale con bagno dedicato - Corridoio distributivo - Camera per bambini - Bagno condiviso L'appartamento rappresenta una scelta adatta per famiglie che apprezzano il comfort. Possibilità di pagamento a rate*

🏡 VENDESI APPARTAMENTO 2+1 – VIA BARDHYL (PIAZZA “STRAUS”), TIRANA
129,000 €

🏡 VENDESI APPARTAMENTO 2+1 – VIA BARDHYL (PIAZZA “STRAUS”), TIRANA

  • 2
  • 1
  • 76 m2
  • 09 maggio 2026

🏡 Casa in vendita Via Bardhyl » Rruga Bardhyl

📍 Posizione: Via Bardhyl, vicino a Piazza Shtraus, Tirana 🏢 Tipologia: Appartamento 2+1 📐 Superficie: 76,4 m² 🏢 Piano: 4 (non ultimo) 🏗️ Edificio esistente (5 piani) 📐 Organizzazione: • 🚪 Corridoio distributore • 🛏️ 2 camere da letto • 🛋️ Soggiorno + cucina + pranzo • 🍳 Angolo cottura • 🚿 Bagno con finestra • 🌅 Balcone 💶 Prezzo: 129.000 € 🆔 ID proprietà: PROIH2516/EN

🏡 VENDESI APPARTAMENTO 2+1 – VIA BARDHYL (PIAZZA “STRAUS”), TIRANA
129,000 €

🏡 VENDESI APPARTAMENTO 2+1 – VIA BARDHYL (PIAZZA “STRAUS”), TIRANA

  • 2
  • 1
  • 09 maggio 2026

🏡 Casa in vendita Via Bardhyl » Rruga Bardhyl

📍 Posizione: Via Bardhyl, vicino a Piazza Shtraus, Tirana 🏢 Tipologia: Appartamento 2+1 📐 Superficie: 76,4 m² 🏢 Piano: 4 (non ultimo) 🏗️ Edificio esistente (5 piani) 📐 Organizzazione: • 🚪 Corridoio distributore • 🛏️ 2 camere da letto • 🛋️ Soggiorno + cucina + sala da pranzo • 🍳 Angolo cottura • 🚿 Bagno con finestra • 🌅 Balcone 💶 Prezzo: 129.000 € 📞 Per ulteriori informazioni o visita alla proprietà, contattare 🆔 ID proprietà: PROIH2516/EN

In vendita, Appartamento 1+1, Via Bardhyl, Tirana
146,000 €

In vendita, Appartamento 1+1, Via Bardhyl, Tirana

  • 1
  • 1
  • 62 m2
  • 09 maggio 2026

🏡 Casa in vendita Via Bardhyl » Rruga Bardhyl

Informazioni sull'appartamento: • Superficie lorda: 62 m2 • Superficie netta: 50,7 m2 • 10° piano • Orientamento nord-ovest Organizzazione: • Zona soggiorno e cucina • 1 camera da letto • 1 bagno • Corridoio distributivo • Balcone Altri dettagli: • Nuova costruzione di qualità • Con 3 ascensori • Possibilità di pagamento a rate.

Appartamento 1+1 a Kubi📌
150,000 €

Appartamento 1+1 a Kubi📌

  • 1
  • 1
  • 60 m2
  • 07 maggio 2026

🏡 Casa in vendita Via Bardhyl » Rruga Bardhyl

Appartamento 1+1 in vendita con una superficie di 60 m², situato al 2° piano residenziale in un edificio esistente, nella zona di Kubi in Via Bardhyl. L'appartamento si trova accanto alla strada principale, in una posizione molto favorevole e accessibile, vicino a tutti i servizi necessari come mercati, farmacie, trasporto urbano e varie attività commerciali. Organizzazione pratica e adatta sia per abitare che per investimento come AirBnB ecc. Prezzo 150.000€

🏠Appartamento 1+1+balcone in vendita 📍Via Bardhyl 💥Posizione super, palazzo sul lato della strada💶150.000€
150,000 €

🏠Appartamento 1+1+balcone in vendita 📍Via Bardhyl 💥Posizione super, palazzo sul lato della strada💶150.000€

  • 1
  • 1
  • 53 m2
  • 07 maggio 2026

🏡 Casa in vendita Via Bardhyl » Rruga Bardhyl

🏠Appartamento 1+1+balcone in vendita 📍Via Bardhyl 💥Super posizione, palazzo fronte strada 🏢2° piano, palazzo esistente 📐Superficie 53m2 💶 Prezzo: 150.000€ Grazie alla sua posizione strategica, la proprietà è ideale non solo per abitare ma anche per investimento, Airbnb, ufficio o varie attività commerciali! 📄Documentazione ipotecaria regolare •L'appartamento è organizzato in: -Corridoio distributore -Soggiorno & Cucina -1 Camera da letto -1 Bagno (con finestra) -Balcone -Ripostiglio Per maggiori informazioni o una visita ravvicinata alla proprietà contattaci!

🏗️ Investi in "Monolith Residence" – 2+1+2 in Via Bardhyl! ✨
238,290 €

🏗️ Investi in "Monolith Residence" – 2+1+2 in Via Bardhyl! ✨

  • 2
  • 2
  • 102 m2
  • 06 maggio 2026

🏡 Casa in vendita Via Bardhyl » Rruga Bardhyl

Approfitta dell'opportunità di acquistare nelle prime fasi di costruzione in una delle residenze più prestigiose che si sta costruendo in Via Bardhyl. Un progetto che combina architettura moderna con una posizione strategica! ✨ Perché scegliere questo appartamento? • ✅ Opzioni di pagamento a rate: Solo il 25% alla firma del contratto e il resto distribuito fino alla consegna. • ✅ Opzione di finanziamento: Questo progetto offre l'opzione di finanziamento bancario, rendendo il tuo acquisto più semplice. • ✅ Personalizzazione: Scegli tu se preferisci parquet o piastrelle per i tuoi ambienti – crea la casa che hai sempre sognato! • ✅ Costruzione d'élite: Edificio con 3 ascensori, isolamento acustico e termico ai più alti standard. • ✅ Posizione top: In Via Bardhyl, vicino a tutti i servizi, scuole, ospedali e a pochi minuti dal centro. • ✅ Valore in crescita: L'acquisto nella fase di scavo garantisce un aumento del valore della proprietà fino al completamento del progetto. 📐 Specifiche della proprietà: • Superficie netta: 83.0 m^2 • Superficie lorda: 101.4 m^2 • Piano: 2 • Organizzazione: Soggiorno + cucina, 2 camere da letto, 2 bagni. 🌟 Assicura il tuo futuro in uno dei progetti più seri della capitale! 📲 Per maggiori informazioni sul progetto e sui piani, contattaci:

Appartamento 2+1 in vendita in via Bardhyl
148,000 €

Appartamento 2+1 in vendita in via Bardhyl

  • 2
  • 1
  • 70 m2
  • 06 maggio 2026

🏡 Casa in vendita Via Bardhyl » rruga bardhyl

Appartamento 2+1 in vendita in Via Bardhyl Superficie: 70 m2 Piano: 3 (senza ascensore) L'appartamento è organizzato come segue: 1 Soggiorno (+Cucina) 2 Camere da letto 1 Bagno Balcone Esposizione est e sud-ovest L'appartamento è completamente ristrutturato da zero: intonaco, impianto elettrico, impianto idraulico multistrato, bagno rifatto, porte nuove, finestre termiche in PVC con doppi vetri, parquet, pittura, ecc. La superficie è di 70 metri quadrati ma il certificato indica 58 m². Posizione: Di fronte al vecchio Mulino Prezzo: €148.000 Cell: 0688724100

APPARTAMENTO 1+1 IN VENDITA IN VIA BARDHYL
149,700 €

APPARTAMENTO 1+1 IN VENDITA IN VIA BARDHYL

  • 1
  • 1
  • 63 m2
  • 06 maggio 2026

🏡 Casa in vendita Via Bardhyl » Rruga Bardhyl

MONOLITH RESIDENCE‼️ 🔱APPARTAMENTO 1+1 IN VENDITA 📍 Via Bardhyl ☀️ Orientamento con luce naturale 💶 149.700 euro 👉1+1 con superficie 63,7m2 🏢 Primo piano residenziale 🏗️ Fase di scavo ✅La costruzione ha alta qualità e standard abitativi contemporanei, con spazi rilassanti e posizionata vicino alle strade principali. ⚜️OPPORTUNITÀ IDEALE PER ABITARE! inHouse Real Estate

Vendesi in vendita 2+1+2 vicino alla Scuola Rossa
250,000 €

Vendesi in vendita 2+1+2 vicino alla Scuola Rossa

  • 2
  • 2
  • 103 m2
  • 04 maggio 2026

🏡 Casa in vendita Via Bardhyl » Shkolla e Kuqe

Posizione: Vicino alla Scuola Rossa, Tirana Palazzo nuovo con ascensore Tipologia: 2 camere da letto + 1 soggiorno + 2 bagni Superficie totale: 103 m2 Balcone Ascensore funzionante Costruito nel 2025 Illuminazione naturale, orientamento sud-ovest L'appartamento si trova in una delle zone più richieste per vivere e investire, molto vicino al centro di Tirana. La zona offre tutte le strutture necessarie: trasporto urbano, scuole, farmacie, supermercati, ecc. Per una visita alla proprietà contattaci!!

Garage in vendita in Via Bardhyl, Tirana - 85.000€ | 30 m²
85,000 €

Garage in vendita in Via Bardhyl, Tirana - 85.000€ | 30 m²

  • 30 m2
  • 04 maggio 2026

🏡 Casa in vendita Via Bardhyl » Rruga Bardhyl

Questo monolocale si trova al primo piano nella zona di Rruga Bardhyl, Tirana, ed è offerto in vendita con una superficie di 30 m². • Superficie 30 m² • Primo piano • Edificio esistente • Con certificato di proprietà • Adatto per abitazione o investimento • Per ulteriori informazioni, vi preghiamo di contattarci!

Garage in Vendita in Via Bardhyl, Tirana - 83.000€ | 30 m²
83,000 €

Garage in Vendita in Via Bardhyl, Tirana - 83.000€ | 30 m²

  • 30 m2
  • 04 maggio 2026

🏡 Casa in vendita Via Bardhyl » Rruga Bardhyl

Questa mansarda si trova nella zona di Rruga Bardhyl a Tirana ed è in vendita al prezzo di 83.000€. • Superficie: 30 m² • Primo piano • Edificio esistente • Con certificato di proprietà • Adatto per abitazione o investimento • Per ulteriori informazioni, vi preghiamo di contattarci!

Appartamento 2+1 in Vendita RR.BARDHYL PIAZZA SHTRAUS
129,000 €

Appartamento 2+1 in Vendita RR.BARDHYL PIAZZA SHTRAUS

  • 2
  • 1
  • 76 m2
  • 01 maggio 2026

🏡 Casa in vendita Via Bardhyl » Rruga Bardhyl

*Appartamento in vendita. 2+1 📍Situato in Via Bardhyl, "Sheshi Shtraus" *Superficie 76,4 m2 *4° piano *Palazzo esistente *Organizzato in: *Corridoio distributore *2 Camere da letto *Bagno con finestra *Soggiorno, cucina e sala da pranzo *Angolo cottura *Balcone *Prezzo: 129.000 Euro (Non trattabile) TRS-19810144

Vendesi in vendita appartamento 2+1 in via Bardhyl
170,000 €

Vendesi in vendita appartamento 2+1 in via Bardhyl

  • 2
  • 1
  • 120 m2
  • 30 aprile 2026

🏡 Casa in vendita Via Bardhyl » Vendodhja : Rruga Bardhyl prane rruges Arkitekt K

Vendesi in vendita appartamento 2+1 in via Bardhyl Superficie: 120 m2 Piano: 2 Si compone di: 1 soggiorno 2 camere da letto 1 bagno La zona offre tranquillità, vicinanza alla Policlinica n. 2, scuole, università e ogni servizio necessario. 📍Posizione: Via Bardhyl vicino a via Architetto Kasemi Prezzo: 170.000 Euro

Vendesi Casa Privata a 1 piano Via Bardhyl 150.000 €
150,000 €

Vendesi Casa Privata a 1 piano Via Bardhyl 150.000 €

  • 1
  • 1
  • 93 m2
  • 26 aprile 2026

🏡 Casa in vendita Via Bardhyl » Rruga Bardhyl

Casa privata di 1 piano in vendita Via Bardhyl, vicino al bar Oslo Superficie 93 m2 Arredata Organizzazione 1+1 Bagno grande Con ipoteca Prezzo 150.000 €

Villa di 4 Piani in Vendita Dentro la Circonvallazione, Vicino a Via Bardhyl a Tirana (ID 4151170)
1,000,000 €

Villa di 4 Piani in Vendita Dentro la Circonvallazione, Vicino a Via Bardhyl a Tirana (ID 4151170)

  • 7
  • 4
  • 565 m2
  • 24 aprile 2026

🏡 Casa in vendita Via Bardhyl » Rruga Bardhyl

Dentro la Circonvallazione, a pochi minuti dal Centro Città, Vendesi Villa/Edificio di 4 Piani, Superficie Totale costruita 565,1 m² (537 m² netti nel Certificato di Proprietà), Piano terra superficie netta 87 m², e gli altri 3 piani con 150 m² netti ciascuno. Posizione Perfetta, vicino al Centro, giardini, farmacie, Ospedali ecc. Ha spazi regolari e ampi. In totale la Villa ha 7 camere da letto, 4 soggiorni, 4 bagni e 4 balconi. Il piano terra è organizzato in 1+1 mentre gli altri 3 piani sono 2+1 ciascuno con 1 bagno e 1 balcone. La proprietà dispone di Documentazione Ipotecaria Regolare. Prezzo di Vendita 1000000 euro.

Vendesi appartamento 2+1+2 in una residenza moderna
238,300 €

Vendesi appartamento 2+1+2 in una residenza moderna

  • 2
  • 2
  • 102 m2
  • 21 aprile 2026

🏡 Casa in vendita Via Bardhyl » Rruga Bardhyl

con standard elevati di costruzione e organizzazione funzionale. L'appartamento è composto da soggiorno con cucina, 2 camere da letto (una matrimoniale con bagno), corridoio e bagno condiviso. Il complesso offre una buona infrastruttura, parcheggio sotterraneo e condizioni di vita confortevoli. Adatto per abitazione familiare o investimento. Possibilità di pagamento a rate.

Appartamento in vendita 1+1+Veranda, Via Bardhyl
130,000 €

Appartamento in vendita 1+1+Veranda, Via Bardhyl

  • 1
  • 1
  • 80 m2
  • 21 aprile 2026

🏡 Casa in vendita Via Bardhyl » Rruga Bardhyl

Appartamento in vendita, situato in una delle zone più richieste di Tirana, ideale sia per abitare che per investimento. Dettagli della proprietà: • Superficie totale: 80,25 m² * Superficie interna: 54,93 m² * Superficie comune: 7,69 m² * Veranda: 17,63 m² (super spazio relax) * Piano: 6 * Costruito nel 2020 * Con certificato di proprietà L'appartamento offre una disposizione funzionale, illuminazione naturale per tutto il giorno e una veranda perfetta per il relax o per investimenti su Airbnb! Posizione strategica: • Vicino agli ospedali principali! * Vicino alla Facoltà di Medicina e Farmacia * Solo 10 minuti dal centro di Tirana * Su strada principale, con accesso massimo

OCCASIONE! APPARTAMENTO 1+1 + 18 m² VERANDA – VIA "BARDHYL"!
130,000 €

OCCASIONE! APPARTAMENTO 1+1 + 18 m² VERANDA – VIA "BARDHYL"!

  • 1
  • 1
  • 80 m2
  • 21 aprile 2026

🏡 Casa in vendita Via Bardhyl » Rruga Bardhyl

Appartamento in vendita, situato in una delle zone più richieste di Tirana, ideale sia per abitazione che per investimento. Dettagli della proprietà: • Superficie totale: 80,25 m² * Superficie interna: 54,93 m² * Superficie comune: 7,69 m² * Veranda: 17,63 m² (ottimo spazio relax) * Piano: 6 * Costruito nel 2020 * Con certificato di proprietà L'appartamento offre una disposizione funzionale, illuminazione naturale per tutto il giorno e una veranda perfetta per relax o investimento in Airbnb! Posizione strategica: • Vicino agli ospedali principali! * Vicino alla Facoltà di Medicina e Farmacia * Solo 10 minuti dal centro di Tirana * Su una strada principale, con accesso massimo

Offerta per case e appartamenti in vendita in Via Bardhyl da agenzie immobiliari e privati. Trova proprietà 1+1, 2+1 a prezzi accessibili per famiglie o spazi piccoli per individui.

Più Ricercati

Casa in affitto Casa in vendita Locale in affitto Locale in vendita Ufficio in affitto Ufficio in vendita Villa in affitto Villa in vendita Appartamento in vendita Appartamento in affitto 1+1 Ambiente Commerciale in Affitto Ambiente Commerciale In Vendita Terreno in affitto Terreno in vendita Appartamento in affitto 2+1 Shop in affitto Shop in vendita Appartamento in affitto a Tirana Casa in affitto a Durazzo Appartamento in affitto 1+1 Tirana Appartamento in affitto 2+1 Tirana Monolocali in affitto a Tirana Casa in vendita a Tirana Appartamenti in vendita a Tirana Appartamenti in affitto a Tirana Casa in vendita a Durazzo Appartamento in affitto a Durazzo 2 + 1 Appartamento in affitto a Durazzo 1 + 1 Monolocale in affitto a Durazzo Appartamento in affitto a Valona 2 + 1 Appartamento in affitto a Valona 1 + 1 Monolocali in affitto a Valona Casa in vendita a Durazzo 2 + 1 Casa in vendita a Durazzo 1 + 1 Monolocali in vendita a Durazzo Casa in vendita a Valona 2 + 1 Casa in vendita a Valona 1 + 1 Monolocali in vendita a Vlore Casa in vendita a Tirana 2 + 1 Casa in vendita a Tirana 1 + 1 Casa in vendita 2 + 1 Casa in vendita 1 + 1 Monolocali in vendita a Tirane Parcheggio in affitto Parcheggi Parcheggio in vendita Casa in affitto a Vlore Casa in vendita a Valona Casa in affitto ad Astir Casa in vendita ad Astir Casa in vendita a Shkodra Casa in vendita a Lezhe Casa in vendita a Kamez Casa in vendita a Divjake Casa in vendita a Vore Casa in vendita a Elbasan Casa in vendita a Kavajë Casa in vendita a Lushnje Casa in vendita a Fier Casa in vendita a Berat Casa in vendita a Pogradec Casa in vendita a Korça Casa in vendita a Saranda Casa in affitto a Scutari Casa in affitto a Lezhe Casa in affitto a Divjake Casa in affitto a Kamez Casa in affitto a Vore Casa in affitto a Elbasan Casa in affitto a Kavajë Casa in affitto a Lushnje Casa in affitto a Fier Casa in affitto a Berat Casa in affitto a Pogradec Casa in affitto a Korça Casa in affitto a Saranda Casa in affitto Unaza e Re Casa in vendita Unaza e Re Casa in affitto 21 Dicembre Casa in vendita 21 Dicembre Appartamento in affitto Via Kavajë Casa in vendita Via di Kavajë Casa in affitto a Fresku Casa in vendita a Fresku Casa in affitto Don Bosko Casa in vendita Don Bosko Casa in affitto Comune di Parigi Casa in vendita Comune di Parigi Casa in affitto Lago Secco Casa in vendita Lago Secco Casa in affitto Stazione dei treni Casa in vendita Stazione dei treni Casa in affitto Kodra e Diellit Casa in vendita Kodra e Diellit Casa in affitto Ali Demi Casa in vendita Ali Demi Appartamento in affitto ex Blloku Casa in vendita ex Blloku Casa in affitto a Farke Casa in vendita a Farke Casa in affitto ex Campo dell'Aviazione Casa in vendita ex Campo dell'Aviazione Casa in affitto a Laprake Casa in vendita a Laprake Casa in affitto Giardino Botanico Zoologico Casa in vendita Giardino Botanico Zoologico Casa in affitto a Myslym Shyri Casa in vendita Myslym Shyri Casa in affitto Via di Elbasani Casa in vendita Via di Elbasani Appartamento in affitto Piazza Skenderbej (Centro) Casa in vendita Piazza Skanderbeg (Centro) Casa in affitto a Yzberisht Casa in vendita a Yzberisht Casa in affitto Via di Dibra Casa in vendita Via di Dibra Casa in affitto Pazar I Ri Casa in vendita Pazar i Ri Appartamento in affitto Centro Commerciale QTU Casa in vendita Centro Commerciale QTU Appartamento in affitto Centro Commerciale TEG Casa in vendita Centro Commerciale TEG Casa in affitto Via 5 Maggio Casa in vendita Via 5 Maggio Casa in affitto Xhamlliku Casa in vendita Xhamlliku Appartamento in affitto Viale Nuovo Casa in vendita Bulevardi i Ri Appartamento in affitto Via di Durazzo Casa in vendita Via di Durazzo Casa in affitto a Selite Casa in vendita a Selite Casa in affitto Selvia Casa in vendita Selvia Casa in affitto Vasil Shanto Casa in vendita Vasil Shanto Casa in affitto Casa Italia Casa in vendita Casa Italia Casa in affitto Porcellana Casa in vendita Porcellana Casa in affitto Kthesa e Kamzes Casa in vendita Kthesa e Kamzes Casa in affitto Kinostudio Casa in vendita Kinostudio Casa in affitto Via dei Kosovari Casa in vendita Via dei Kosovari Casa in affitto a Sauk Casa in vendita a Sauk Casa in affitto Zogu I Zi Casa in vendita Zogu I Zi Casa in affitto Oxhaku Casa in vendita a Oxhaku Casa in affitto Via Bardhyl Casa in vendita Via Bardhyl Appartamento in affitto Via Dritan Hoxha Casa in vendita Via Dritan Hoxha Casa in affitto Via delle Barricate Casa in vendita Via delle Barricate Casa in affitto Mercato Elettrico Casa in vendita Mercato Elettrico Appartamento in affitto Viale Zogu I Casa in vendita Viale Zogu I Casa in affitto Lago di Tirana Casa in vendita Lago di Tirana Casa in affitto a Brryli Casa in vendita a Brryli Casa in affitto a Lunder Casa in vendita a Lunder Casa in affitto Scuola Rossa Casa in vendita Scuola Rossa Casa in affitto ex Esposizione Casa in vendita Ex Esposizione Casa in affitto Jordan Misja Casa in vendita Jordan Misja Casa in affitto Via Mine Peza Casa in vendita Via Mine Peza Casa in affitto Mjull - Bathore Casa in vendita Mjull - Bathore Casa in affitto Autostrada Tirana - Durazzo Casa in vendita Autostrada Tirana - Durazzo Casa in affitto Medreseja Casa in vendita Medreseja Casa in affitto Ish Dogana Casa in vendita ex Dogana Casa in affitto Kombinat Casa in vendita Kombinat Casa in affitto a Paskuqan Casa in vendita a Paskuqan Casa in affitto Piazza Willson Casa in vendita Piazza Willson Casa in affitto Scuola di Balletto Casa in vendita Scuola di Balletto Casa in affitto Stadio Dinamo Casa in vendita Stadio Dinamo Appartamento in affitto Ospedale QSUT (Madre Teresa) Casa in vendita Ospedale QSUT (Madre Teresa) Appartamento in affitto presso il Parco degli Autobus Casa in vendita presso il Parco degli Autobus Casa in affitto Sauk i Ri Casa in vendita Sauk i Ri Casa in affitto Scuola Unita Casa in vendita Scuola Unita Casa in affitto a Shkoze Casa in vendita a Shkoze Casa in affitto a Babrru Casa in vendita a Babrru Casa in affitto Sauk Vecchio Casa in vendita Sauk di Vecchio Appartamento in affitto Palazzo con Freccia Casa in vendita Palazzo con Freccia Casa in affitto Globe Casa in vendita Globe Casa in affitto a Kashar Casa in vendita a Kashar Casa in affitto a Vore Casa in vendita a Vore Casa in affitto a Linze Casa in vendita a Linze Casa in affitto Via Fortuzi Casa in vendita Via Fortuzi Casa in affitto Ville Tedesche Casa in vendita Ville Tedesche Appartamento in affitto Viale Zhan Dark Casa in vendita Viale Zhan Dark Casa in affitto a Dajt Casa in vendita a Dajt Casa in affitto Istituto Casa in vendita Istituto Casa in affitto Misto Mame Casa in vendita Misto Mame Casa in affitto Ristorante Durresi Casa in vendita Ristorante Durresi Annunci domestici Casa in vendita con credito 300 euro 200 euro 250 euro 300 euro 300 euro astir 300 euro 21 dhjetori 200 euro Casa in affitto non arredata Casa in affitto arredata Vendita di casa Marina di Valona Complesso Delijorgji case in affitto Quadrato 21 case in affitto vendita Complesso Delijorgji casa in vendita Casa in vendita occasione Cerco casa in affitto Marina Turchese Residenza Ringside Paskuqan Casa in vendita scheletro Vlore Casa in vendita lungomare di Vlore Casa in affitto lungomare di Vlore Paradiso delle palme Qerret Università città case in vendita Università città case in affitto