40,000 €
Për shitje 09 maj 2025

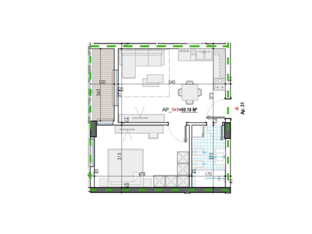
Apartament ne shitje 1+1

Kamez, Tirane

  • 58 m2
  • 1 Dhoma gjumi
  • 1 Tualet
  • 1 Kuzhine
  • Kati 3
  • 290 Shikime
Përshkrimi

📌Shitet apartament 1+1

Siperfaqe totale prej: 58.6 m2


, Kati 3,
Apartamenti organizohet në:

- Dhomë ndenje dhe gatimi;
- 1 Dhoma gjumi;
- 1 tualet;
- ballkon
Faze karabina

📍Vendndodhja: Kamez Mehillaj Shpk

Cmimi per shitje: 40.000 euro

Kontaktoni

Llogaritësi i kredisë
%
%
Vite
Muaji Payment Principali Interesi Totali i interesit Gjendja e mbetur

Na vjen keq, është shumë vonë për një telefonatë. Ju lutemi na kontaktoni përmes WhatsApp ose telefononi nesër nga ora 07:00 - 21:00.

office-address