380,209 €
Per shitje 3 orë më parë

OKAZION! Apartament 2+1 me oborr për Shitje tek Square Village, Dhërmi!

Square Village, Dhermi, Vlore

  • 119 m2
  • 2 Dhoma gjumi
  • 1 Tualet
  • 1 Kuzhine
Pershkrimi

✦DETAJET E PRONËS:
─────────────

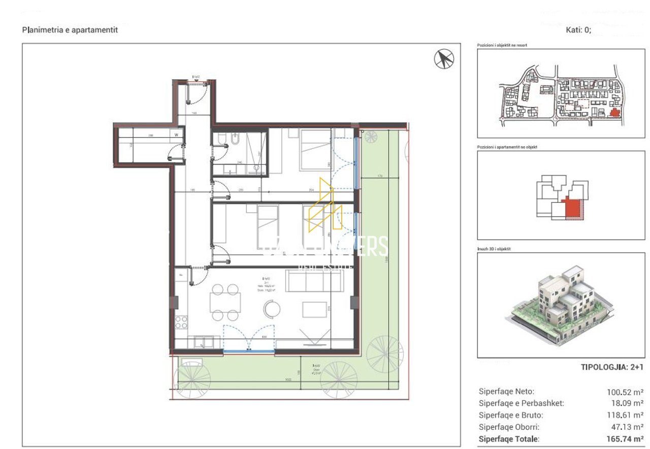
•Tipologji: 2+1 me oborr
•Sipërfaqe neto: 100.52 m²
•Sipërfaqe bruto: 118.61 m²
•Sipërfaqe oborri: 47.13 m²
•Sipërfaqe totale: 165.74 m²
•Lokacioni: Village Square, Dhërmi

✦ORGANIZIMI I BRENDSHËM:
──────────────────
•Sallon ndenjeje me kuzhinë të përfshirë
•2 dhoma gjumi
•1 tualet:
 – Me akses nga korridori shpërndarës
•Gardërobë me akses nga korridori shpërndarës
•Oborr me akses të drejtpërdrejtë nga:
 – Salloni
 – Dhoma matrimoniale
 – Dhoma e fëmijëve

•Korridor shpërndarës që lidh funksionalisht të gjitha ambientet

✦KARAKTERISTIKAT:
────────────

•I përshtatshëm për banim gjatë gjithë vitit ose si shtëpi pushimi
•Mundësi shumë e mirë për investim me potencial të lartë qiraje sezonale
•Ndërtim cilësor në një kompleks të mirëmbajtur
•Ndriçim natyral dhe ajrosje e mirë në të gjitha ambientet
•Izolim termik dhe akustik
•Planimetri funksionale dhe moderne
•Ambient i organizuar në mënyrë praktike për jetesë komode

✦ZONA:
────

✦ Apartamenti ndodhet në Village Square, një prej komplekseve më të kërkuara në Dhërmi, i njohur për stilin unik arkitektonik dhe afërsinë me detin.

•Zona ofron:

•Akses të shpejtë në plazh dhe atraksione turistike
•Restorante, bare dhe njësi shërbimi cilësore
•Infrastrukture të zhvilluar dhe ambient të qetë

✦ÇMIMI:
────

•Çmimi total: 380,209 €

✦ Për më shumë informacion ose për të planifikuar një vizitë në pronë, ju lutemi na kontaktoni.

Kontaktoni

Llogaritësi i kredisë
%
%
Vite
Muaji Payment Principali Interesi Totali i interesit Gjendja e mbetur

Na vjen keq, është shumë vonë për një telefonatë. Ju lutemi na kontaktoni përmes WhatsApp ose telefononi nesër nga ora 09:00 - 19:00.

office-address