OKAZION! Apartament 2+1 me oborr për Shitje tek Square Village, Dhërmi!
OKAZION! Apartament 2+1 me oborr për Shitje tek Square Village, Dhërmi!
256,558 € (3,091 € / m²)
Për shitje 08 tetor 2025

OKAZION! Apartament 2+1 me oborr për Shitje tek Square Village, Dhërmi!

Village Square, Dhërmi, Vlore

  • DSH-070440
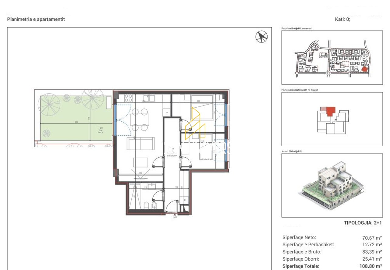
  • 83 m2
  • 2 Dhoma gjumi
  • 1 Tualet
  • 1 Kuzhine
  • 6 Shikime
Përshkrimi

✦ DETAJET E PRONËS:

─────────────
• Tipologji: 2+1 me oborr
• Sipërfaqe neto: 70.67 m²
• Sipërfaqe bruto: 83.39 m²
• Sipërfaqe oborri: 25.41 m²
• Sipërfaqe totale: 108.80 m²
• Rezidenca: Village Square, Dhërmi
• Kati: 0

✦ ORGANIZIMI I BRENDSHËM:

──────────────────
• 1 sallon ndenjeje me kuzhinë të përfshirë
• 2 dhoma gjumi
• 1 tualet me akses nga korridori shpërndarës
• Oborr privat me akses direkt nga salloni

✦ KARAKTERISTIKAT:

────────────
I përshtatshëm për:
• Investim me kthim të lartë, si për qira sezonale ashtu edhe afatshkurtër
• Ndodhet në ndërtim
• Kompleks rezidencial me arkitekturë tradicionale mesdhetare
• Cilësi e lartë ndërtimi dhe finiturash moderne

✦ ZONA:

────
• Village Square, një nga komplekset më tërheqëse dhe tërësisht të integruara në zemër të Dhërmiut
• Akses i menjëhershëm në:
  – Plazhet e bukura të Dhërmiut
  – Restorante, bare, boutique-hotele dhe shërbime turistike
  – Ambient i qetë, me atmosferë relaksuese bregdetare

✦ ÇMIMI:

────
• Totali: 256,558 €

Detaje të tjera

  • I pabanuar më parë

Kontaktoni

Llogaritësi i Kredisë
%
%
Vite
Muaji Payment Principali Interesi Totali i interesit Gjendja e mbetur

Na vjen keq, është shumë vonë për një telefonatë. Ju lutemi na kontaktoni përmes WhatsApp ose telefononi nesër nga ora 09:00 - 19:00.