115,000 €
Per shitje 13 orë më parë

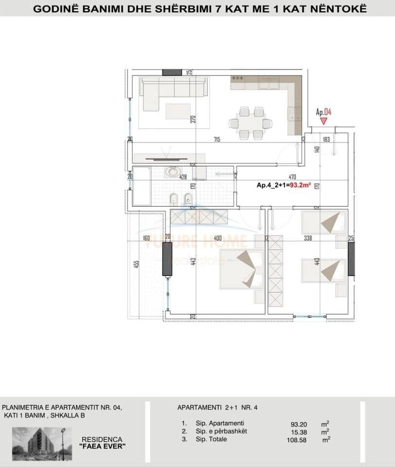
Shitje, Apartament 2+1, Rezidenca FAEA, Paskuqan, Tiranë

Rezidenca FAEA, Tirane

  • 108 m2
  • 2 Dhoma gjumi
  • 1 Tualet
  • Kati 1
  • 13 Shikime
Pershkrimi

Disponojme Apartament 2+1, per Shitje
Apartamenti ndodhet tek FAEA EVER Residence, Paskuqan, Tirane

Informacion mbi apartamentin:
• Kati 1 banim
• Sipërfaqe neto 93.2 m²
• Sipërfaqe bruto 108.58 m²

Apartamenti disponon:
• Ambient ndenjie dhe gatimi
• 1 dhome gjumi
• 1 tualet
• Ballkon

Cilesime te tjera:
• Rezidence banimi me kushte bashkekohore
• Apartamenti behet i banueshem per 2 muaj
• Apartamenti është ideal për banim personal ose investim
• Për më shumë informacion, ju lutem na kontaktoni!

Kontaktoni

Llogaritësi i kredisë
%
%
Vite
Muaji Payment Principali Interesi Totali i interesit Gjendja e mbetur

Na vjen keq, është shumë vonë për një telefonatë. Ju lutemi na kontaktoni përmes WhatsApp ose telefononi nesër nga ora 07:00 - 21:00.

office-address