82,000 €
Për shitje 15 tetor 2025

Shitet apartament 1+1 prane Casa Italias!

CasaItalia - MegaOutlet, Tirane

  • 66 m2
  • 1 Dhoma gjumi
  • 1 Tualet
  • 4 km nga qendra
  • 20 Shikime
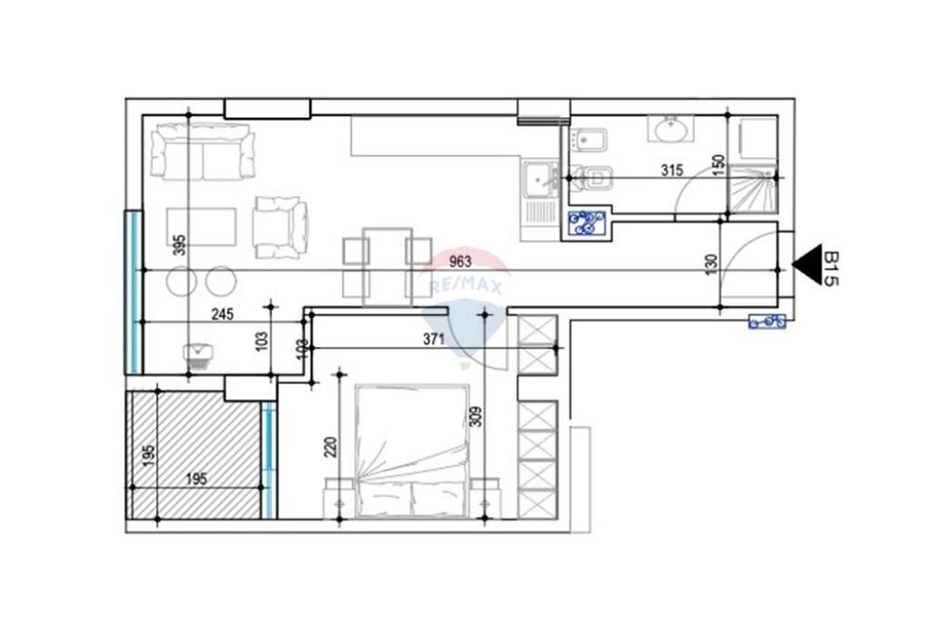
Përshkrimi

Apartamenti ka një sipërfaqe totale prej 65.7 m² bruto dhe 55 m² neto dhe është i organizuar në:
1 dhomë ndenjeje
1 dhomë gjumi
1 tualet
Korridor shpërndarës
Prona disponon certifikatë pronësie dhe jepet e pamobiluar, duke ofruar mundësi arredimi sipas dëshirës.
Ideale si investim ose për banim.
Cmimi 1250eu/m2
Për më shumë informacion apo një vizitë ne pronë na kontaktoni!

Transporti Publik

Stacione dhe linja të transportit publik pranë pronës

Më afër

Stacioni - Terminal D

13B
Tirana e re
4
City Park – Qendër
152 m larg
2 min në këmbë

Distancat janë përllogaritur në vijë ajrore. Distanca e vërtetë në ecje mund të jetë ndryshe dhe pozicioni i pronës mund të ketë devijime të vogla

Vendndodhja në hartë

Kontaktoni

Llogaritësi i kredisë
%
%
Vite
Muaji Payment Principali Interesi Totali i interesit Gjendja e mbetur

Na vjen keq, është shumë vonë për një telefonatë. Ju lutemi na kontaktoni përmes WhatsApp ose telefononi nesër nga ora 07:00 - 21:00.

office-address