Cmimi sipas kerkeses.
Për shitje 4 orë më parë

Shitet, Apartament 2+1+2+Post Parkimi, Durres

Rrugan e Plazhit, Durres

  • 217 m2
  • 2 Dhoma gjumi
  • 2 Tualete
  • 1 Kuzhine
  • Kati 5
  • 3 Shikime
Pershkrimi

Disponojme Apartament 2+1+2+Post Parkimi per shitje ne Durres
Apartamenti ndodhet te rruga e plazhit, vije e pare me detin.

Informacion mbi apartamentin:
• Kati 5 banim
• Siperfaqe bruto: 217 m2
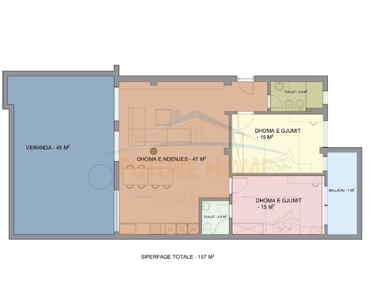
• Siperfaqe neto: 157 m2

Organizimi :
• Salloni i ndenjes dhe ambient gatimi
• 2 Dhoma gjumi
• 2 Tualete
• 1 Ballkon
• 1 Verande
• 1 Tarrace

Detaje te tjera:
• Ndertim i ri
• Totalisht i investuar
• Ndricim dhe spote
• Pallat i mireadministruar me ashensore
• Disponon dokumentacion te rregullt hipotekor
• Zone e aksesueshme dhe e preferuar per banim dhe investim

Per me shume informacion na kontaktoni!

Vendndodhja

Kontaktoni

Llogaritësi i kredisë
%
%
Vite
Muaji Payment Principali Interesi Totali i interesit Gjendja e mbetur

Na vjen keq, është shumë vonë për një telefonatë. Ju lutemi na kontaktoni përmes WhatsApp ose telefononi nesër nga ora 07:00 - 21:00.

office-address