Shitet Apartament 2+1 – 105.59 m²  Totale
Shitet Apartament 2+1 – 105.59 m²  Totale
126,708 € (1,195 € / m²)
Për shitje 21 tetor 2025

Shitet Apartament 2+1 – 105.59 m² Totale

Paskuqan, Kamez

  • DSH-076909
  • 106 m2
  • 2 Dhoma gjumi
  • 1 Tualet
  • Kati 1
  • 1 Shikime
Përshkrimi

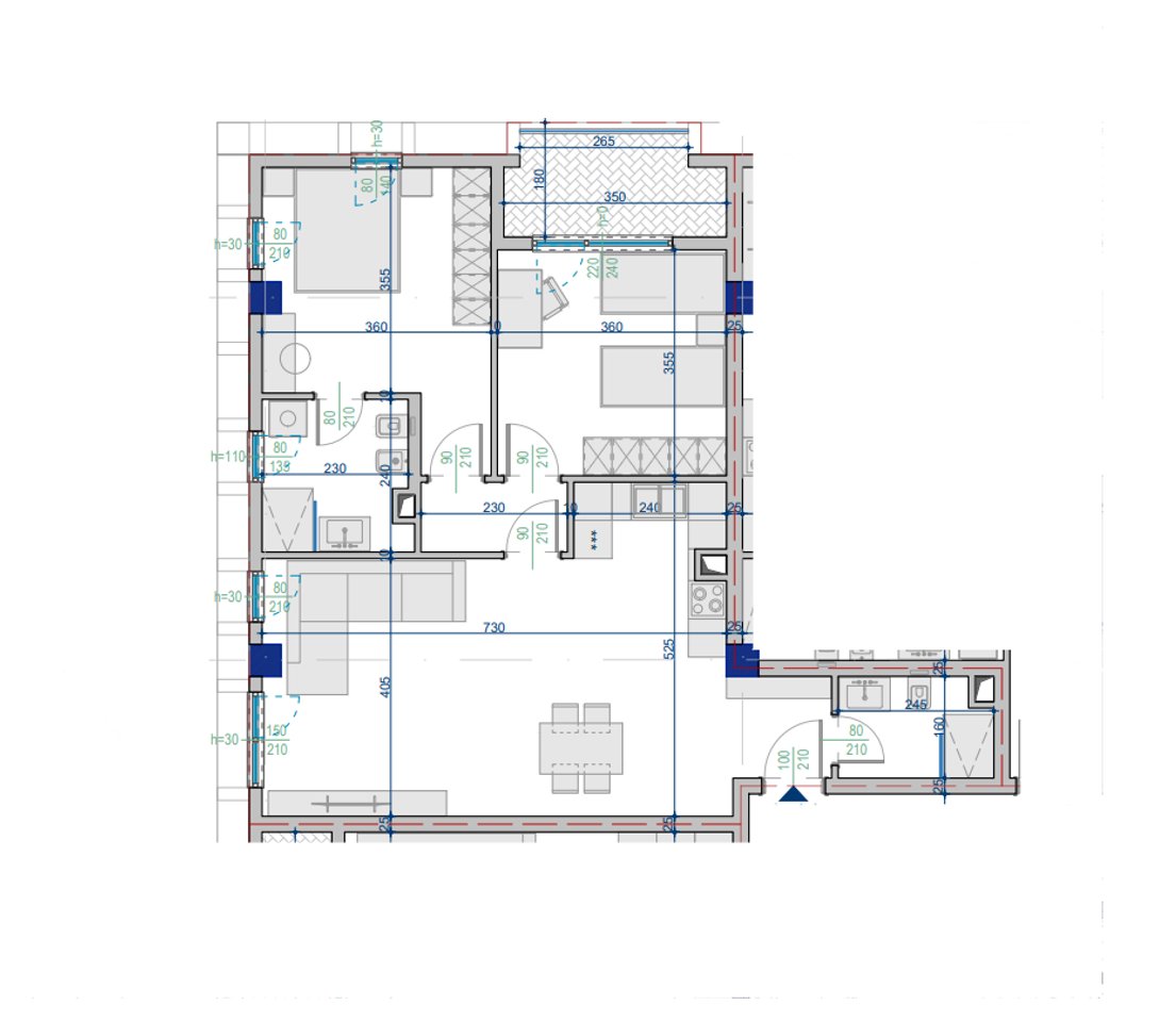
Në shitje apartament i gjerë dhe modern 2+1, pjesë e një godine të re me cilësi të lartë ndërtimi.

? Sipërfaqe neto: rreth 89.6 m²
? Sipërfaqe totale: 105.59 m²

✅ Planimetri funksionale me dy dhoma gjumi, sallon, kuzhinë dhe banjo
✅ Ndriçim natyral i bollshëm dhe ambient i mirëorganizuar
✅ Ashensor në ndërtesë dhe sistem mirëmbajtjeje
✅ E përshtatshme për familje apo investim afatgjatë

? Vendndodhje strategjike me akses të lehtë në transport dhe shërbime

? Kontakto tani për të marrë më shumë informacion ose për të organizuar një vizitë!

Detaje të tjera

  • 0m nga qendra

Vendndodhja në hartë

Kontaktoni

Llogaritësi i Kredisë
%
%
Vite
Muaji Payment Principali Interesi Totali i interesit Gjendja e mbetur

Na vjen keq, është shumë vonë për një telefonatë. Ju lutemi na kontaktoni përmes WhatsApp ose telefononi nesër nga ora 07:00 - 21:00.