Shitet apartament 1+1 prane Casa Italias!
Shitet apartament 1+1 prane Casa Italias!
93,000 €
Për shitje 21 tetor 2025

Shitet apartament 1+1 prane Casa Italias!

casa italia , Tirane

  • DSH-077024
  • 77 m2
  • 1 Dhoma gjumi
  • 1 Tualet
  • 26 Shikime
Përshkrimi

Shitet apartament 1+1 prane Casa Italias!
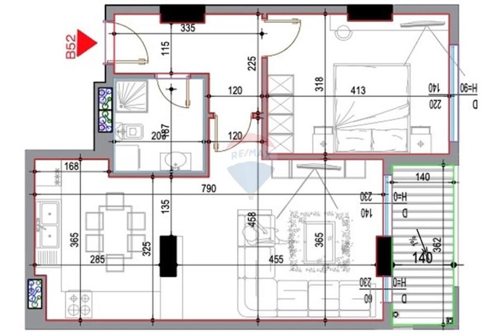
Shitet apartament 1+1 pranë Casa Italias.
Apartamenti ka një sipërfaqe totale prej 77.1 m² dhe 64.5 m² neto, i pozicionuar ne katin e gjashte dhe është i organizuar në:
1 dhomë ndenjeje
Kuzhine
1 dhomë gjumi
1 tualet
Ballkon
Korridor shpërndarës
Prona disponon certifikatë pronësie dhe jepet e pamobiluar, duke ofruar mundësi arredimi sipas dëshirës.
Ideale si investim ose për banim.
Çmimi është i panegociueshëm!
Për më shumë informacion apo një vizitë ne pronë na kontaktoni!

Kontaktoni

Llogaritësi i Kredisë
%
%
Vite
Muaji Payment Principali Interesi Totali i interesit Gjendja e mbetur

Na vjen keq, është shumë vonë për një telefonatë. Ju lutemi na kontaktoni përmes WhatsApp ose telefononi nesër nga ora 07:00 - 21:00.