Shitet OKAZION Apartamenti 3+1 tek Bulevardi i Ri
Shitet OKAZION Apartamenti 3+1 tek Bulevardi i Ri
Shitet OKAZION Apartamenti 3+1 tek Bulevardi i Ri
225,885 €
Për shitje 28 tetor 2025

Shitet OKAZION Apartamenti 3+1 tek Bulevardi i Ri

Bulevardi i Ri, Tirane

  • DSH-080280
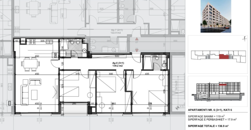
  • 136 m2
  • 3 Dhoma gjumi
  • 2 Tualete
  • 1 Kuzhine
  • Kati 6
  • 1.6 km nga qendra
  • 39 Shikime
Përshkrimi

✨ Shitet Apartamenti 3+1 tek Bulevardi i Ri✨
🏗️ Ndodhen në një kompleks të ri, aktualisht në fazë ndërtimi
Siperfaqe 136.9 m2
kati i 6 me ashensor
(kat i 5, së shpejti fillojnë tullat dhe ndarjet).
📐 Me planimetri të ndryshme që mund t’i përshtasësh sipas nevojës.
💰 Çmimi: 1650 €uro/m²
Cmimi 225.885 Euro
👉 1550 €/m² për pagesë cash.
📍 Lokacion i favorshëm, afër sheshit të ri dhe rrugëve kryesore.
📑 Planimetria mund të dërgohet sipas kërkesës.
📆 Vizitat mund të organizohen që nga java tjetër.
F RFS REAL ESTATE

Transporti Publik

Stacione dhe linja të transportit publik pranë pronës

Më afër

Stacioni - Rruga Besa

12
Uzina Dinamo – Sharrë
166 m larg
2 min në këmbë

Distancat janë përllogaritur në vijë ajrore. Distanca e vërtetë në ecje mund të jetë ndryshe dhe pozicioni i pronës mund të ketë devijime të vogla

Vendndodhja në hartë

Kontaktoni

Llogaritësi i Kredisë
%
%
Vite
Muaji Payment Principali Interesi Totali i interesit Gjendja e mbetur

Na vjen keq, është shumë vonë për një telefonatë. Ju lutemi na kontaktoni përmes WhatsApp ose telefononi nesër nga ora 07:00 - 21:00.