🏠 *Shitet Super Apartament 1+1 tek Fusha e Aviacionit*
🏠 *Shitet Super Apartament 1+1 tek Fusha e Aviacionit*
112,685 € (1,565 € / m²)
Për shitje 16 dhjetor 2025

🏠 *Shitet Super Apartament 1+1 tek Fusha e Aviacionit*

Ish Fusha e Aviacionit, Tirane

  • DSH-080311
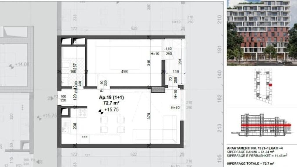
  • 72 m2
  • 1 Dhoma gjumi
  • 1 Tualet
  • Kati 4
  • 67 Shikime

Në Ndërtim

Përshkrimi

🏠 Shitet Super Apartament 1+1 tek Fusha e Aviacionit
📍 *Vendndodhje: Fusha e Aviacionit*
🛏️ *Tipologjia:* 1+1
🏢 *Kati:* 4
📐 *Sipërfaqe:* 72.7 m²
💶 *Çmimi:* 1,550 €/m²
💰 *Total:* 112,685 Euro
📅 *Përfundon për 2 vite*
✅ *Mundësi shumë e mirë investimi*
RFS REAL ESTATE

Detaje të tjera

  • E pa mobiluar
  • Ka ashensor

Kontaktoni

Llogaritësi i Kredisë
%
%
Vite
Muaji Payment Principali Interesi Totali i interesit Gjendja e mbetur

Na vjen keq, është shumë vonë për një telefonatë. Ju lutemi na kontaktoni përmes WhatsApp ose telefononi nesër nga ora 07:00 - 21:00.