🍪 Cookies dhe privatësia
duashpi.al përdor cookies për të përmirësuar eksperiencën, përmbajtjen e personalizuar dhe analizimin e trafikut. Duke klikuar "Prano", ju jepni lejen tuaj për përdorimin e cookies.
 
                 
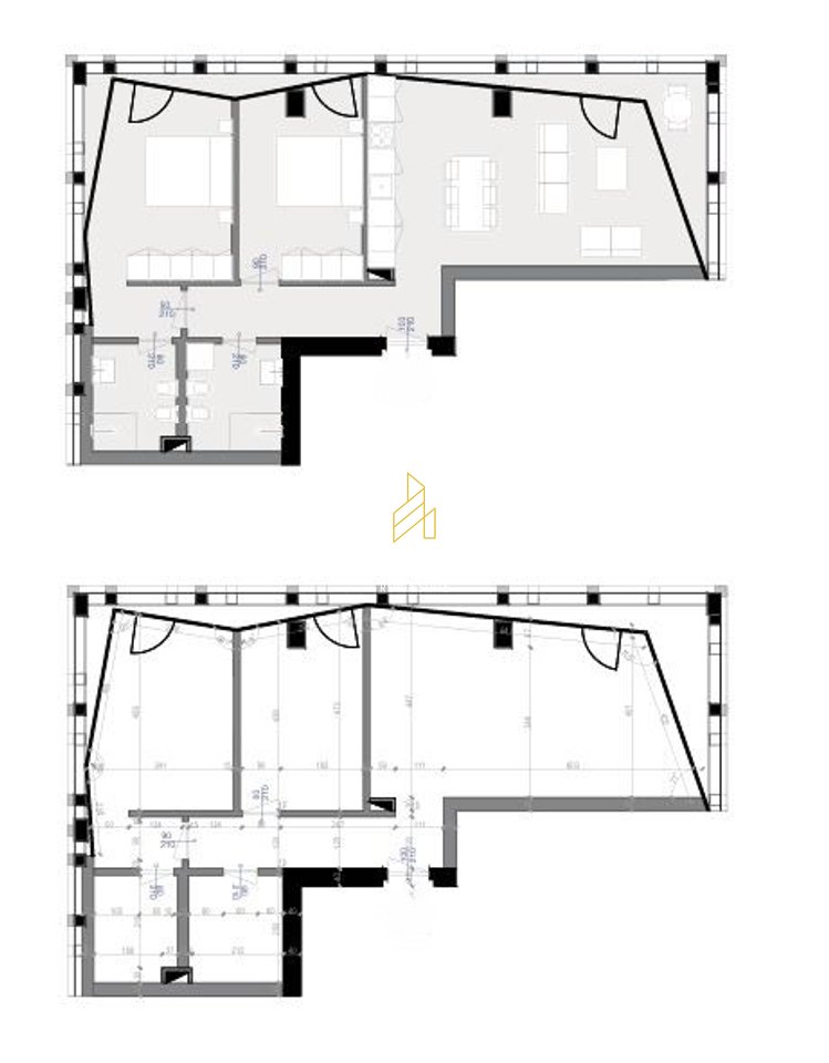
                ✦ DETAJET E PRONËS:
─────────────
• Tipologji: 2+1+2
• Sip. Neto: 101.46 m²
• Sip. Bruto Totale: 122.36 m²
• Kati: Mundësi përzgjedhje nga kati 11 deri në katin e 15
• Rezidenca: Mara Palace
• Adresë: Tek Shkolla e Kuqe
• Statusi: Në ndërtim
✦ ORGANIZIMI:
──────────────────
• Sallon me kuzhinë të integruar
• 2 dhoma gjumi
• 2 tualete
• Ballkon
• Korridor shpërndarës
✦ KARAKTERISTIKAT:
────────────
• I përshtatshëm për familje ose investim me qira (Airbnb/long-term)
• Plan i organizuar për hapësirë funksionale dhe komode
• Ndërtim modern me standarde të larta
✦ ZONA DHE REZIDENCA:
────
• Pranë Shkollës së Kuqe — zonë e zhvilluar me akses të shpejtë në rrugët kryesore, transport dhe shërbime.
• Ambient i qetë dhe i përshtatshëm për banim afatgjatë.
✦ ÇMIMI:
────
• €281,428
| Muaji | Payment | Principali | Interesi | Totali i interesit | Gjendja e mbetur | 
|---|
Na vjen keq, është shumë vonë për një telefonatë. Ju lutemi na kontaktoni përmes WhatsApp ose telefononi nesër nga ora 09:00 - 19:00.