Apartament ne shitje 2+1 ne Paskuqan (ID B120745) Tirane
Apartament ne shitje 2+1 ne Paskuqan (ID B120745) Tirane
141,400 €
Për shitje 13 nëntor 2025

Apartament ne shitje 2+1 ne Paskuqan (ID B120745) Tirane

Shkolla 9-vjeçare "Lidhja e Prizrenit", Paskuqan, Kamez

  • DSH-089768
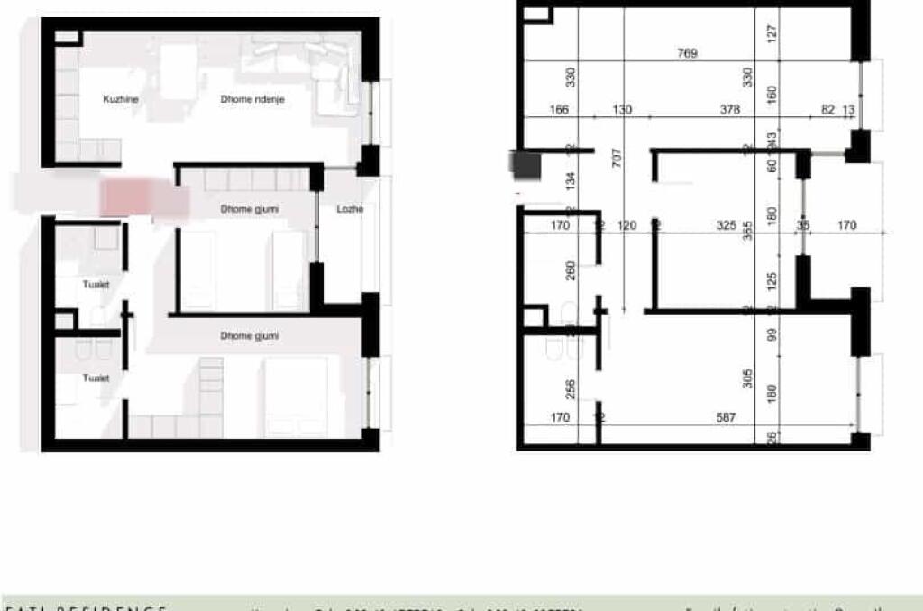
  • 108 m2
  • 2 Dhoma gjumi
  • 2 Tualete
  • 1 Kuzhine
  • Kati 6
  • 0 m nga qendra
  • 4 Shikime
Përshkrimi

Ne Paskuqan shitet apartament 2+1, 2 tualete, garderobe, ballkon, me siperfaqe 108.7 m2 bruto (92.8 m2 siperfaqe neto ME KONTRATE POROSIE), kati i 6, pallat i ri, me ashensor, ne ndertim perfundon ne fund te 2027. S.K.
Tarife sherbimi agjensie 1% e vleres se shitjes
Shitet 141.400 euro

Vendndodhja në hartë

Kontaktoni

Llogaritësi i Kredisë
%
%
Vite
Muaji Payment Principali Interesi Totali i interesit Gjendja e mbetur

Na vjen keq, është shumë vonë për një telefonatë. Ju lutemi na kontaktoni përmes WhatsApp ose telefononi nesër nga ora 07:00 - 18:55.