SHESIM VILË INDIVIDUALE ME OBORR, NË KOMPLEKSIN “TURQUOISE MARINA”!
SHESIM VILË INDIVIDUALE ME OBORR, NË KOMPLEKSIN “TURQUOISE MARINA”!
SHESIM VILË INDIVIDUALE ME OBORR, NË KOMPLEKSIN “TURQUOISE MARINA”!
1,445,000 € (1,226 € / m²)
Për shitje 14 nëntor 2025

SHESIM VILË INDIVIDUALE ME OBORR, NË KOMPLEKSIN “TURQUOISE MARINA”!

Gjiri I Lalzit, Durres

  • DSH-090720
  • 1178 m2
  • 4 Dhoma gjumi
  • 3 Tualete
  • 2 Kuzhine
  • Kati 3
  • 12 Shikime

Në Ndërtim

Përshkrimi

Shesim vilë individuale T1 me oborr,në Kompleksin "Turquoise Marina"!

Turquoise Marina ofron cilësi të lartë të përcaktuar nga EUROCODE, me ndjekje rigoroze të 10 standardeve evropiane për
dizajnin strukturor.
Investimi ka në përbërje hapësira të dedikuara për terrene sportive, pishina,
Aquapark, Marine Port dhe faciliete të shumta për t’iu dhuruar një jetesë të qetë, larg zhurmës dhe kaosit të përditshëm të qyteteve.

Detaje për pronën:
- Viti i ndërtimit:2025

- Sipërfaqe fizike: 261 m²
-Sipërfaqe nëntokë : 130.71 m²
-Sipërfaqe verande : 120 m²
-Sipërfaqe oborri : 535.95 m²
- Sipërfaqe e parcele: 666.67 m²


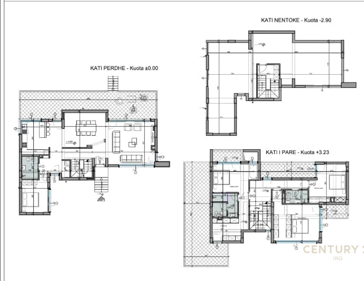
Karakteristikat dhe organizimi i vilës:

✅ Kati nëntokë :130.71 m²
✅ Kati përdhe: Sallon i bollshëm me kuzhinë të hapur, 1 dhomë gjumi, 1 tualet dhe 1 depo.
✅ Kati i parë : 3 Dhoma gjumi,2 tualete,1 garderobë,1 studio,4 ballkone.

Aquapark vjen për herë të parë në Shqipëri brenda një rezidence.
Do të gjeni bare, restorante dhe klube për t'u argëtuar gjatë gjithë vitit.

•Administrimi
•Pastrimi
•Gjelbërim
•Shërbim Sigurie
•Mirëmbajtja teknike
•Mirëmbajtje Elektrik

Për më shumë detaje ose për një vizitë në pronë, na kontaktoni.

Detaje të tjera

  • Parkim i përfshirë
  • E pa mobiluar
  • Viti i ndërtimit: 2025
  • 3 Kate gjithsej

Vendndodhja në hartë

Kontaktoni

Llogaritësi i Kredisë
%
%
Vite
Muaji Payment Principali Interesi Totali i interesit Gjendja e mbetur

Na vjen keq, është shumë vonë për një telefonatë. Ju lutemi na kontaktoni përmes WhatsApp ose telefononi nesër nga ora 09:00 - 19:00.