115,500 €
Për shitje 1 orë më parë

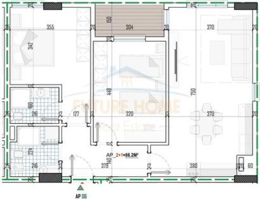
Shitet, Apartament 2+1+2, Paskuqan, Tiranë

Paskuqan, Tirane

  • 100 m2
  • 2 Dhoma gjumi
  • 2 Tualete
  • 1 Kuzhine
  • Kati 1
  • 3.3 km nga qendra
Përshkrimi

Disponojmë për Shitje, Apartament 2+1+2, Paskuqan, Tiranë Informacion mbi apartamentin: *1150 euro për meter katror * Sipërfaqja bruto: 100.43 m2 * Sipërfaqja neto: 86.20 m2 * Kati 1 Organizimi: * Ambient ndenje * Ambient gatimi * 2 Dhoma gjumi * 2 Tualete * 1 Ballkon Cilësime të tjera: • Shitet bosh • Ndërtimi i ri, faze karabina • Ashensor • Orientim : Veri • Fasadë e ventiluar Për një vizitë në pronë na kontaktoni!

Vendndodhja në hartë

Kontaktoni

Llogaritësi i kredisë
%
%
Vite
Muaji Payment Principali Interesi Totali i interesit Gjendja e mbetur

Na vjen keq, është shumë vonë për një telefonatë. Ju lutemi na kontaktoni përmes WhatsApp ose telefononi nesër nga ora 09:00 - 21:00.

office-address