APARTAMENT 2+1+2 PER SHITJE TE MIVITA RESIDENCE
APARTAMENT 2+1+2 PER SHITJE TE MIVITA RESIDENCE
APARTAMENT 2+1+2 PER SHITJE TE MIVITA RESIDENCE
146,000 €
Për shitje 02 janar 2026

APARTAMENT 2+1+2 PER SHITJE TE MIVITA RESIDENCE

Rruga Dritan Hoxha, Tirane

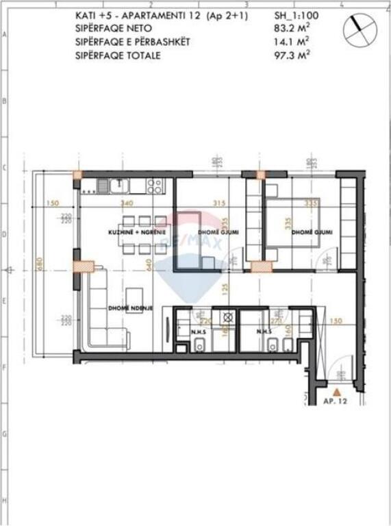
  • DSH-109146
  • 97 m2
  • 2 Dhoma gjumi
  • 2 Tualete
  • 2.3 km nga qendra
  • 199 Shikime
Përshkrimi

Prane rruges Dritan Hoxha dhe Ish fushes se Aviacionit te Mivita Residence ofrohet apartament 2+1+2 per shitje.
Apartamenti ndodhet ne katin e 8 te nje ndertimi te ri ne faze tulle i cili perfundon ne fund te 2026. Organizohet ne: korridor, dy dhoma gjumi, sallon ndenje me ambient gatimi, dy tualete, ballkon. Objekti izolohet nga fasada e ventiluar. Mundesi ideale banimi dhe investimi.

Transporti Publik

Stacione dhe linja të transportit publik pranë pronës

Më afër

Stacioni - Pallatet Arabe

13B
Tirana e re
4
City Park – Qendër
5B
Institut – Qendër
94 m larg
1 min në këmbë

Distancat janë përllogaritur në vijë ajrore. Distanca e vërtetë në ecje mund të jetë ndryshe dhe pozicioni i pronës mund të ketë devijime të vogla

Vendndodhja në hartë

Kontaktoni

Llogaritësi i Kredisë
%
%
Vite
Muaji Payment Principali Interesi Totali i interesit Gjendja e mbetur

Na vjen keq, është shumë vonë për një telefonatë. Ju lutemi na kontaktoni përmes WhatsApp ose telefononi nesër nga ora 07:00 - 21:00.