SHITET APARTAMENT 2+1 RIVER SIDE RESIDENCE 271.000 EURO
SHITET APARTAMENT 2+1 RIVER SIDE RESIDENCE 271.000 EURO
271,000 € (2,007 € / m²)
Për shitje 07 janar 2026

SHITET APARTAMENT 2+1 RIVER SIDE RESIDENCE 271.000 EURO

River Side Residences, Tirane

  • DSH-116699
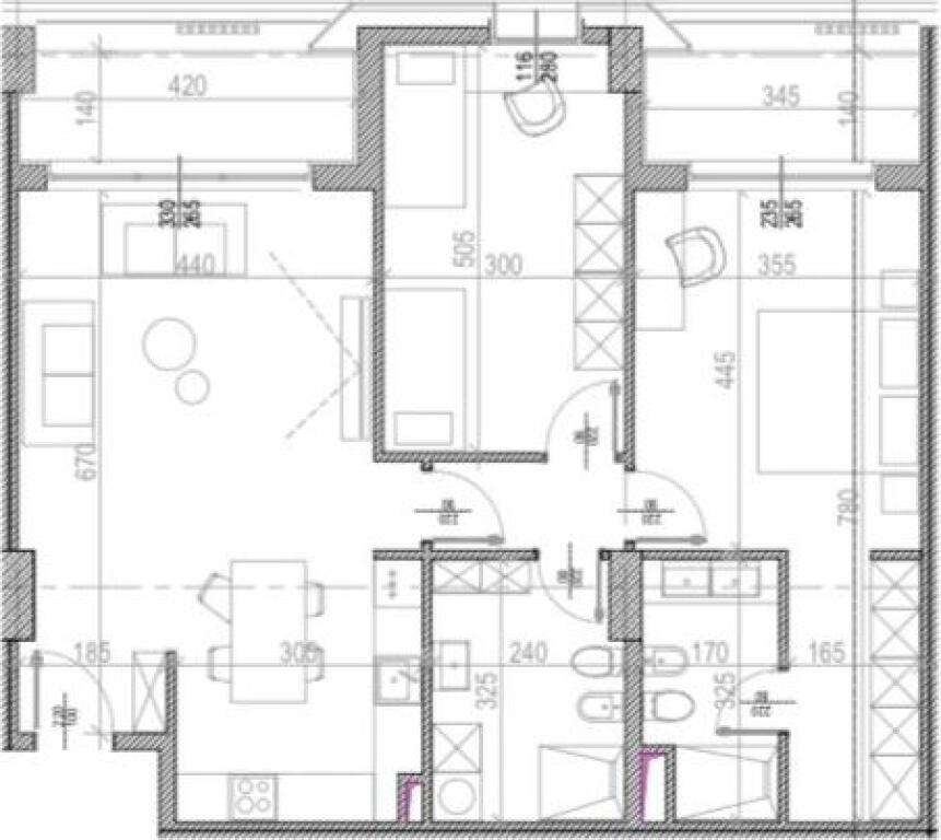
  • 135 m2
  • 2 Dhoma gjumi
  • 2 Tualete
  • 1 Kuzhine
  • Kati 6
  • 12 Shikime

Në Ndërtim

Përshkrimi

SHITET APARTAMENT
•2+1
•SIPERFAQE BRUTO 135.54M2
•SIPERFAQE NETO 110.52M2
•KATI 6
•SALLON
•2 DHOMA GJUMI
•2 TUALETE
•BALLKON
•PALLAT I RI
•ME ASHENSOR
•FAZE TULLE
•SHITEN ME KESTE OSE DHE ME KLERING
•RRUGA E KAVAJES
•RIVER SIDE RESIDENCE
•ÇMIMI 271.000 EURO
FELIZ HOME +439/+446

Detaje të tjera

  • Viti i ndërtimit: 1990 - 2000
  • Ka ashensor
  • 2.4km nga qendra

Transporti Publik

Stacione dhe linja të transportit publik pranë pronës

Më afër

Stacioni - Kristaq Dollaku

13A
Tirana e re
237m larg
3 min në këmbë

Distancat janë përllogaritur në vijë ajrore. Distanca e vërtetë në ecje mund të jetë ndryshe dhe pozicioni i pronës mund të ketë devijime të vogla

Vendndodhja në hartë

Arsimi & Shkollat përreth

Shkolla 9-vjeçare Albanet
9-vjeçare
192m
Distancat janë përllogaritur në vijë ajrore. Distanca e vërtetë në ecje mund të jetë ndryshe dhe pozicioni i pronës mund të ketë devijime të vogla

Kontaktoni

-->
Llogaritësi i Kredisë
%
%
Vite
Muaji Payment Principali Interesi Totali i interesit Gjendja e mbetur

Na vjen keq, është shumë vonë për një telefonatë. Ju lutemi na kontaktoni përmes WhatsApp ose telefononi nesër nga ora 07:00 - 21:00.