💥 OKAZION- APARTAMENT 2+1 + VERANDË PËR SHITJE – VILLAGE SQUARE, DHËRMI!
256,558 € (2,375 € / mÂČ)
Për shitje 08 janar 2026

đŸ’„ OKAZION- APARTAMENT 2+1 + VERANDË PËR SHITJE – VILLAGE SQUARE, DHËRMI!

Village Square, Vlore

  • DSH-116983
  • 108 m2
  • 2 Dhoma gjumi
  • 1 Tualet
  • 1 Kuzhine
  • 17 Shikime

Në Ndërtim

Përshkrimi

đŸ’„ OKAZION | INVESTIM LUKSOZ BUZË DETIT
NĂ« njĂ« nga rezidencat mĂ« ekskluzive tĂ« bregdetit shqiptar, Village Square – DhĂ«rmi, ofrohet pĂ«r shitje apartament elegant tipologji 2+1, ideal pĂ«r banim, pushime apo investim afatgjatĂ«.
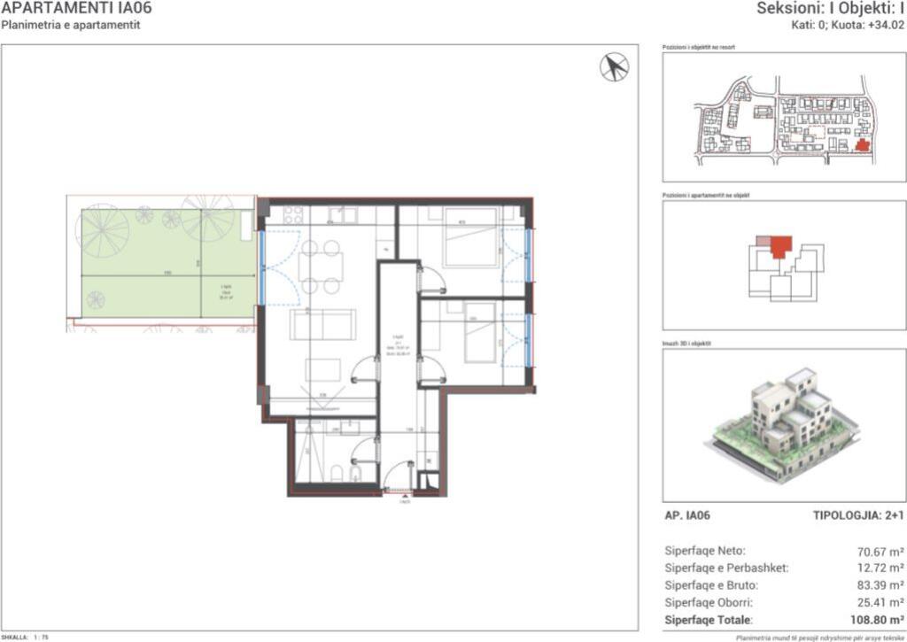
📍 Apartamenti Nr. A06
đŸ—ïž RezidencĂ« elitare me standarde tĂ« larta ndĂ«rtimi
🌊 Ambient perfekt pĂ«r relaks dhe jetĂ« luksoze pranĂ« detit
📐 Detaje tĂ« pronĂ«s:
SipĂ«rfaqe apartamenti: 83.39 mÂČ
SipĂ«rfaqe verandĂ«: 25.41 mÂČ
Tipologji: 2+1
Kati: 0
Verandë e bollshme, ideale për pushim, darka në natyrë dhe relaks total
💰 Çmimi:
Çmimi apartamenti: 2,650 €/mÂČ
Çmimi verandĂ«s: 1,400 €/mÂČ
Çmimi total: 256,558 € – OKAZION
✹ Avantazhe kryesore:
Vendndodhje premium në Dhërmi
Rezidencë moderne dhe e mirëadministruar
Potencial shumë i lartë për qira sezonale
Investim i sigurt në një nga zonat më të kërkuara turistike
📞 Na kontaktoni pĂ«r mĂ« shumĂ« informacion ose pĂ«r njĂ« vizitĂ« nĂ« pronĂ«.

Detaje të tjera

  • E pa mobiluar
  • Ka ashensor

Vendndodhja në hartë

Kontaktoni

-->
Llogaritësi i Kredisë
€
€
%
%
Vite
Muaji Payment Principali Interesi Totali i interesit Gjendja e mbetur

Na vjen keq, është shumë vonë për një telefonatë. Ju lutemi na kontaktoni përmes WhatsApp ose telefononi nesër nga ora 07:00 - 21:00.