Shitet, Apartament 1+1 , Don Bosko, Tirane
Shitet, Apartament 1+1 , Don Bosko, Tirane
Shitet, Apartament 1+1 , Don Bosko, Tirane
155,000 € (2,384 € / m²)
Për shitje 22 janar 2026

Shitet, Apartament 1+1 , Don Bosko, Tirane

Don Bosco, Tirane

  • DSH-121835
  • 65 m2
  • 1 Dhoma gjumi
  • 1 Tualet
  • 11 Shikime
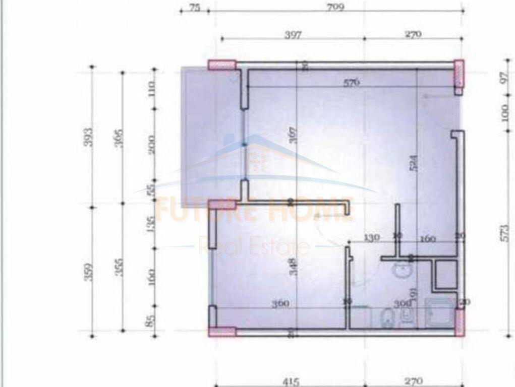
Përshkrimi

Apartamenti ndodhet pranë Viva Market, në zonën Don Bosko, një nga zonat më të kërkuara dhe të zhvilluara për banim në Tiranë.
Informacion mbi apartamentin:
• Tipologjia: 1+1
• Sipërfaqe neto: 55 m²
• Sipërfaqe bruto: 65 m²
• Kati: 1 banim
• Orientim: Jug–Perëndim
• Ndërtim i ri
• Pallat me ashensor
• Me dokumentacion të rregullt hipotekor
• Mundësi blerjeje me kredi
• Shitet bosh

Apartamenti disponon:
• Ambient ndenje + gatimi
• 1 Dhom gjumi
• 1 Tualet
• Ballkon

Cilësime të tjera:
• Planimetri funksionale dhe kubaturë e rregullt
• Ndriçim natyral gjatë gjithë ditës
• I përshtatshëm për banim ose investim
• Zonë e zhvilluar me të gjitha shërbimet pranë

Për më shumë informacione ose për një vizitë në pronë, ju lutem na kontaktoni!

Detaje të tjera

  • I pabanuar më parë
  • 1.7km nga qendra

Transporti Publik

Stacione dhe linja të transportit publik pranë pronës

Më afër

Stacioni - Vizion Plus

6
Laprakë – Qendër
24m larg
0 min në këmbë

Distancat janë përllogaritur në vijë ajrore. Distanca e vërtetë në ecje mund të jetë ndryshe dhe pozicioni i pronës mund të ketë devijime të vogla

Vendndodhja në hartë

Arsimi & Shkollat përreth

Shkolla 9-vjeçare Qazim Turdiu
9-vjeçare
230m
Albanian College Tirana
Kolegj
342m
Qatar College
Kolegj
436m
Distancat janë përllogaritur në vijë ajrore. Distanca e vërtetë në ecje mund të jetë ndryshe dhe pozicioni i pronës mund të ketë devijime të vogla

Kontaktoni

Llogaritësi i Kredisë
%
%
Vite
Muaji Payment Principali Interesi Totali i interesit Gjendja e mbetur

Na vjen keq, është shumë vonë për një telefonatë. Ju lutemi na kontaktoni përmes WhatsApp ose telefononi nesër nga ora 07:00 - 21:00.