Shitet Apartament 2+1 – Rruga Dritan Hoxha
Shitet Apartament 2+1 – Rruga Dritan Hoxha
201,600 € (1,800 € / m²)
Për shitje 19 janar 2026

Shitet Apartament 2+1 – Rruga Dritan Hoxha

Zogu I Zi, Tirane

  • DSH-124546
  • 112 m2
  • 2 Dhoma gjumi
  • 1 Kuzhine
  • 5 Shikime
Përshkrimi

Shitet Apartament 2+1 – Rruga Dritan Hoxha
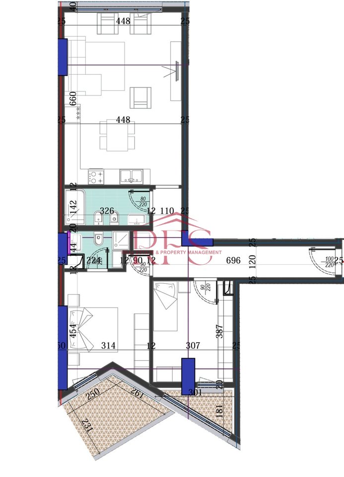
Shitet apartament 2+1 në një pallat në fazë ndërtimi, i pozicionuar në një nga zonat më të kërkuara të Tiranës, Rruga Dritan Hoxha.
🔹 Sipërfaqe bruto: 112 m²
🔹 Sipërfaqe neto: 92.5 m²
🔹 Tipologji: 2+1
🔹 Objekt në ndërtim
🔹 Investim modern dhe cilësor
🔹 I përshtatshëm për banim ose investim
💶 Çmimi total: 201,600 euro
📞 Kontakt: 0698256369

Detaje të tjera

Kontaktoni

Llogaritësi i Kredisë
%
%
Vite
Muaji Payment Principali Interesi Totali i interesit Gjendja e mbetur

Na vjen keq, është shumë vonë për një telefonatë. Ju lutemi na kontaktoni përmes WhatsApp ose telefononi nesër nga ora 07:00 - 21:00.