Shitet apartament 2+1+2 ne 5 Maj
Shitet apartament 2+1+2 ne 5 Maj
Shitet apartament 2+1+2 ne 5 Maj
171,000 €
Për shitje 3 ditë më parë

Shitet apartament 2+1+2 ne 5 Maj

Rruga Lucie Miloti, Tirane

  • DSH-125151
  • 107 m2
  • 2 Dhoma gjumi
  • 2 Tualete
  • 1 Kuzhine
  • Kati 6
  • 9 Kate gjithsej
  • 2.2 km nga qendra
  • 128 Shikime
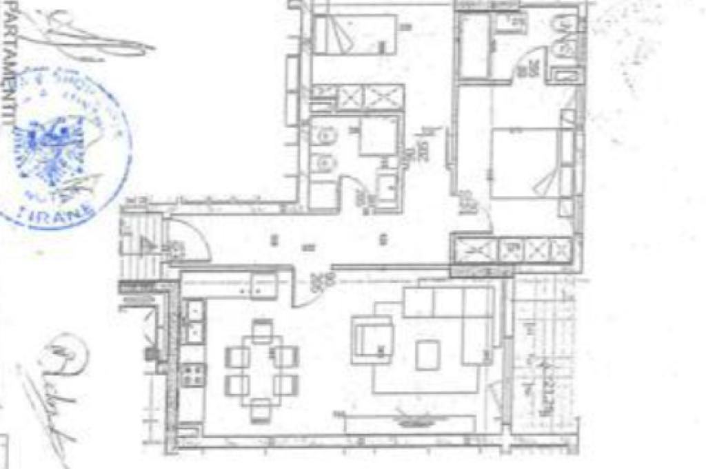
Përshkrimi

Shitet apartament 2+1+2 ne 5 Maj
Siperfaqe: 107.19
Kati: 6 Banim
Objekti ndodhet ne ndertim te Rii perfunduar

Apartamenti organizohet ne:
- 2 Dhoma gjumi
- Ambient Ndenje + Ambient Gatimi
- 2 Tualete
-1 Ballkon
Vendodhja: 5 Maji ( rruga Lucie Miloti )
Planimetria esht 3+1 por qe esht konvertuar ne 2+1
Cmimi:1600 Euro m2
Cmimi Total: 171,504 Euro

Vendndodhja në hartë

Kontaktoni

Llogaritësi i Kredisë
%
%
Vite
Muaji Payment Principali Interesi Totali i interesit Gjendja e mbetur

Na vjen keq, është shumë vonë për një telefonatë. Ju lutemi na kontaktoni përmes WhatsApp ose telefononi nesër nga ora 09:00 - 21:00.