Apartament 2+1 ne Shitje ne Paskuqan Tirane
Apartament 2+1 ne Shitje ne Paskuqan Tirane
92,620 € (1,157 € / m²)
Për shitje 02 mars 2026

Apartament 2+1 ne Shitje ne Paskuqan Tirane

Aluna Complex, Kamez

  • DSH-126396
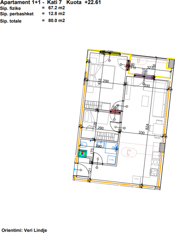
  • 80 m2
  • 2 Dhoma gjumi
  • 1 Tualet
  • 67 Shikime

Në Ndërtim

Përshkrimi

Paskuqan, Residenca Aluna, disponojme per shitje Apartamente 2+1 me siperfaqeve 80 m2. Apartamenteti ndodhet ne katin e 7, ne nje pallat ne ndertim ne faze suva. Organizohet ne soxhorno, 2 dhoma gjumi, tualet dhe ballkon. Orientimi veri-lindje.
Shitet 92 620 Euro

Detaje të tjera

  • 0m nga qendra

Vendndodhja në hartë

Kontaktoni

Llogaritësi i Kredisë
%
%
Vite
Muaji Payment Principali Interesi Totali i interesit Gjendja e mbetur

Na vjen keq, është shumë vonë për një telefonatë. Ju lutemi na kontaktoni përmes WhatsApp ose telefononi nesër nga ora 07:00 - 21:00.