206,000 €
Për shitje 1 ditë më parë

OKAZION! Tek RiverSide Residence! Shitet 2+1+2

Rruga Stavri Themeli, Tirane

  • 114 m2
  • 2 Dhoma gjumi
  • 2 Tualete
  • 1 Kuzhine
  • 2.2 km nga qendra
  • 11 Shikime
Përshkrimi

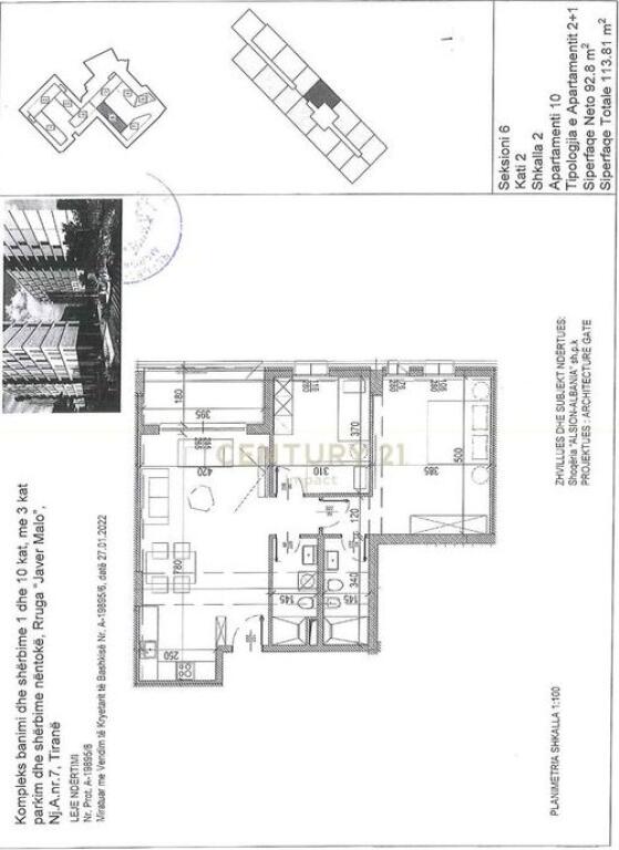
Shitet apartament 2+1+2 – Riverside Residences
Apartament modern me sallon dhe kuzhinë të përbashkët, 2 dhoma gjumi dhe 2 tualete. Ndodhet në katin e 2-të banim.
Sipërfaqe bruto 113.81 m², neto 92.8 m².
Kompleks bashkëkohor në një zonë shumë të kërkuar të Tiranës, pranë Rrugës “Javer Malo” dhe Bulevardit “Gjergj Fishta”, me parkim nëntokë dhe facilitete shërbimi.
Kontakto për më shumë informacion
Impact | 131449

Transporti Publik

Stacione dhe linja të transportit publik pranë pronës

Më afër

Stacioni - Ura Teknologjike

12
Uzina Dinamo – Sharrë
3A
Kashar
15A
Kombinat – Kinostudio
15B
Kombinat – Tufinë
3C
Yrshek – Qendër
270 m larg
4 min në këmbë

Distancat janë përllogaritur në vijë ajrore. Distanca e vërtetë në ecje mund të jetë ndryshe dhe pozicioni i pronës mund të ketë devijime të vogla

Vendndodhja në hartë

Kontaktoni

Llogaritësi i Kredisë
%
%
Vite
Muaji Payment Principali Interesi Totali i interesit Gjendja e mbetur

Na vjen keq, është shumë vonë për një telefonatë. Ju lutemi na kontaktoni përmes WhatsApp ose telefononi nesër nga ora 07:00 - 21:00.

office-address