Apartament Ne Shitje 1+1 Ne Kamez (ID B110520) Tirane
59,500 € (850 € / m²)
Për shitje 28 janar 2026

Apartament Ne Shitje 1+1 Ne Kamez (ID B110520) Tirane

Mehillaj rezidenc, Kamez

  • DSH-131370
  • 70 m2
  • 1 Dhoma gjumi
  • 1 Tualet
  • 1 Kuzhine
  • Kati 5
  • 9 Shikime

Në Ndërtim

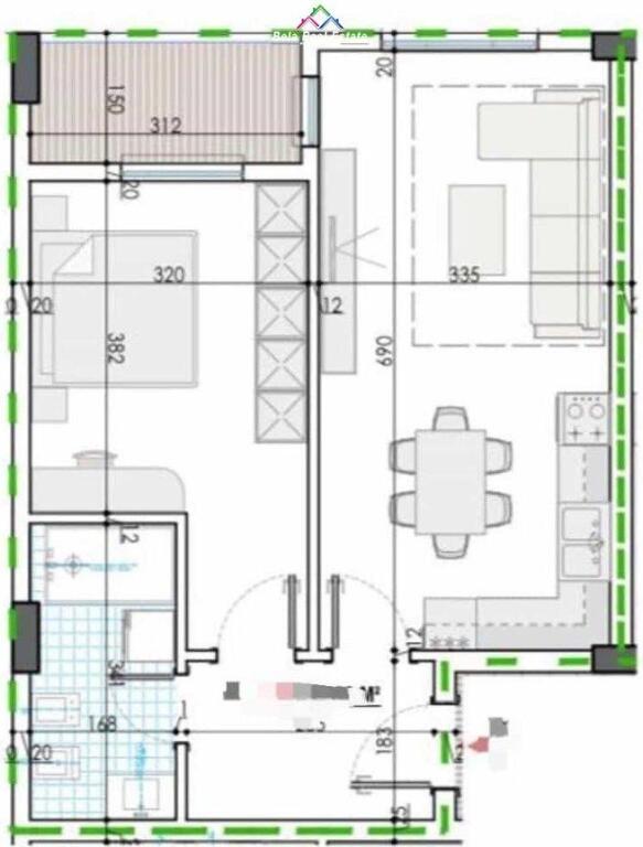
Përshkrimi

Ne Kamez, ne rrugen Teuta, tek Mehillaj Residence, shitet apartament, 1+1, ne ndertim, me siperfaqe totale 70.35 m2( siperfaqe neto 60.23 m2, ME KONTRATE POROSIE), kati 5, pallat i ri me ashensor, tualet, ballkon. G.T
Perfundon ne Korrik 2026.
Tarife sherbimi agjensie 1 % e vleres se shitjes.
Shitet 59.500 Euro.

Detaje të tjera

  • E pa mobiluar
  • Ka ashensor
  • 0m nga qendra

Vendndodhja në hartë

Kontaktoni

Llogaritësi i Kredisë
%
%
Vite
Muaji Payment Principali Interesi Totali i interesit Gjendja e mbetur

Na vjen keq, është shumë vonë për një telefonatë. Ju lutemi na kontaktoni përmes WhatsApp ose telefononi nesër nga ora 07:00 - 18:55.