155,000 €
Për shitje 1 orë më parë

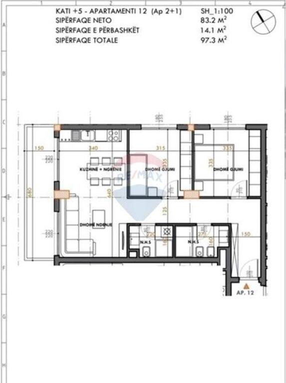
Shitet, Apartament 2+1+2, Rezidenca Mivita, Tiranë.

Rruga Benjamin Kruta, Tirane

  • 97 m2
  • 2 Dhoma gjumi
  • 2 Tualete
  • 1 Kuzhine
  • 3 Shikime
Përshkrimi

Shitet, Apartament 2+1+2, Rezidenca Mivita, Tiranë.
Informacion mbi apartamentin:
Sipërfaqja bruto: 97.3 m2.
Sipërfaqja neto: 83.2 m2.
Kati 8.
Fazë tulle.
Organizimi:
Ambient ndenje.
Ambient gatimi.
2 Dhoma gjumi.
2 Tualete.
Ballkon.
Orientimi Perendim
Cilësime të tjera:
Planimetri e rregullt.
Fasadë e ventiluar.
Izolim termik dhe akustik.
Për një vizitë në pronë na kontaktoni!

Vendndodhja në hartë

Kontaktoni

Llogaritësi i Kredisë
%
%
Vite
Muaji Payment Principali Interesi Totali i interesit Gjendja e mbetur

Na vjen keq, është shumë vonë për një telefonatë. Ju lutemi na kontaktoni përmes WhatsApp ose telefononi nesër nga ora 07:00 - 21:00.

office-address