Shesim Apartament 2+1 tek kompleksi Aura në zonën e Laprakes
Shesim Apartament 2+1 tek kompleksi Aura në zonën e Laprakes
Shesim Apartament 2+1 tek kompleksi Aura në zonën e Laprakes
190,400 €
Për shitje 21 shkurt 2026

Shesim Apartament 2+1 tek kompleksi Aura në zonën e Laprakes

Rruga Dritan Hoxha, Tirane

  • DSH-151807
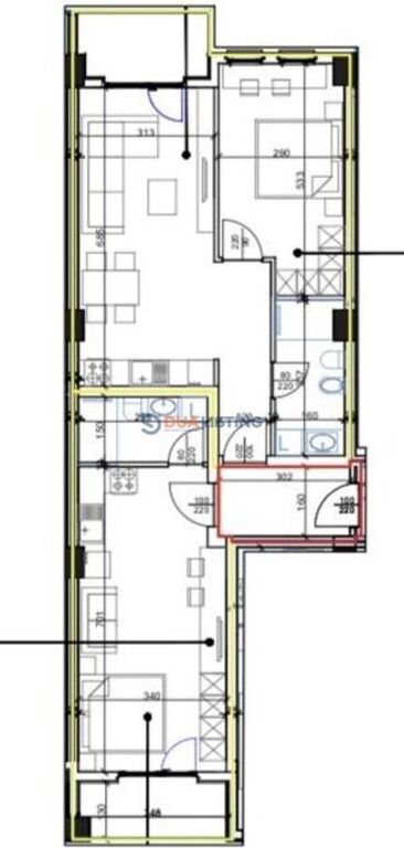
  • 119 m2
  • 2 Dhoma gjumi
  • 2 Tualete
  • 1 Kuzhine
  • Kati 5
  • 10 Kate gjithsej
  • 2.3 km nga qendra
  • 24 Shikime
Përshkrimi

Disponojmë Apartament 2+1 për Shitje me mundesi ndarje ne apartament 1+1 dhe garsoniere.
Apartamenti ndodhet në kompleksin Aura, që po ndërtohet në zonën e Laprakes.
Informacion mbi apartamentin:
* Kati 5
* Siperfaqe:118.9 m2
Organizimi i brendshëm:
* Salloni dhe Ambienti gatimit.
* 2 Dhoma gjumi
* 2 Tualete
* Me ashensor
Per me shume informacione na kontaktoni!

Transporti Publik

Stacione dhe linja të transportit publik pranë pronës

Më afër

Stacioni - Pallatet Arabe

13B
Tirana e re
4
City Park – Qendër
5B
Institut – Qendër
94 m larg
1 min në këmbë

Distancat janë përllogaritur në vijë ajrore. Distanca e vërtetë në ecje mund të jetë ndryshe dhe pozicioni i pronës mund të ketë devijime të vogla

Vendndodhja në hartë

Kontaktoni

Llogaritësi i Kredisë
%
%
Vite
Muaji Payment Principali Interesi Totali i interesit Gjendja e mbetur

Na vjen keq, është shumë vonë për një telefonatë. Ju lutemi na kontaktoni përmes WhatsApp ose telefononi nesër nga ora 07:00 - 21:00.