Apartament 2+1 per shitje ne Astir
Apartament 2+1 per shitje ne Astir
Apartament 2+1 per shitje ne Astir
Apartament 2+1 per shitje ne Astir
121,000 €
Për shitje 1 orë më parë

Apartament 2+1 per shitje ne Astir

Astir Tiranë, Tirane

  • 74 m2
  • 2 Dhoma gjumi
  • 1 Tualet
  • 3.6 km nga qendra
  • 4 Shikime
Përshkrimi

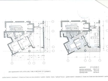
Ne Astir, prane rruges Astrit Losha, shitet Apartament 2+1 me siperfaqe bruto 74 m2.
Kati i dyte me ashensor.
Organizohet nga salloni i ndenjes sebashku me kendin e gatimit, 2 dhoma gjumi.
I sapo rikonstruktuar, vendosje gipsi, parket dhe tualet i ri.

Transporti Publik

Stacione dhe linja të transportit publik pranë pronës

Më afër

Stacioni - Erzen Lita

119 m larg
2 min në këmbë

Distancat janë përllogaritur në vijë ajrore. Distanca e vërtetë në ecje mund të jetë ndryshe dhe pozicioni i pronës mund të ketë devijime të vogla

Vendndodhja në hartë

Kontaktoni

Llogaritësi i Kredisë
%
%
Vite
Muaji Payment Principali Interesi Totali i interesit Gjendja e mbetur

Na vjen keq, është shumë vonë për një telefonatë. Ju lutemi na kontaktoni përmes WhatsApp ose telefononi nesër nga ora 07:00 - 21:00.