Apartament 2+1+2
Apartament 2+1+2
Apartament 2+1+2
207,500 € (1,660 € / m²)
Për shitje 21 shkurt 2026

Apartament 2+1+2

Rruga Teodor Keko, Tirane

  • DSH-152478
  • 125 m2
  • 2 Dhoma gjumi
  • 2 Tualete
  • 1 Kuzhine
  • Kati 9
  • 9 Shikime
Përshkrimi

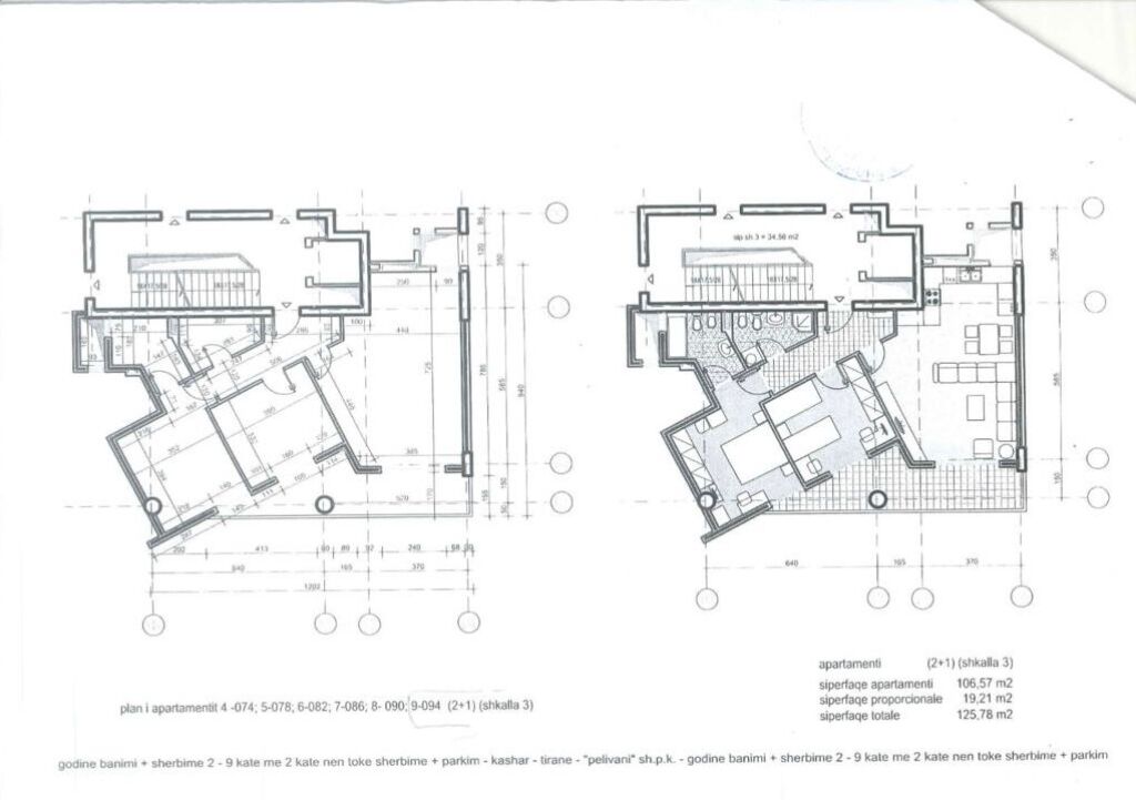
Apartament 2+1+1
Kati i 9 (i fundit)
Me hiptoke jepet dhe me kredi
Siperfaqe totale 125.76 m2
1.650 EURO METRI
ESHTE ME PAMJE NGA RRUGA KRYESORE
ME KONTAKTO NE

Detaje të tjera

  • Pjesërisht e mobiluar
  • Viti i ndërtimit: 2015
  • 9 Kate gjithsej
  • Ka ashensor
  • 2.8km nga qendra

Transporti Publik

Stacione dhe linja të transportit publik pranë pronës

Më afër

Stacioni - Nexho Konomi

13A
Tirana e re
3A
Kashar
34m larg
0 min në këmbë

Distancat janë përllogaritur në vijë ajrore. Distanca e vërtetë në ecje mund të jetë ndryshe dhe pozicioni i pronës mund të ketë devijime të vogla

Vendndodhja në hartë

Kontaktoni

Llogaritësi i Kredisë
%
%
Vite
Muaji Payment Principali Interesi Totali i interesit Gjendja e mbetur

Na vjen keq, është shumë vonë për një telefonatë. Ju lutemi na kontaktoni përmes WhatsApp ose telefononi nesër nga ora 07:00 - 21:00.