Jepet 2 ambjente me qera Fresk
Jepet 2 ambjente me qera Fresk
2,500 € / në muaj
Me qera 23 shkurt 2026

Jepet 2 ambjente me qera Fresk

Prane Oxa, Tirane

  • DSH-152824
  • 390 m2
  • 4 Dhoma gjumi
  • 2 Tualete
  • 2 Kuzhine
  • Kati 5
Përshkrimi

Jepet 2 ambjente me qera Fresk
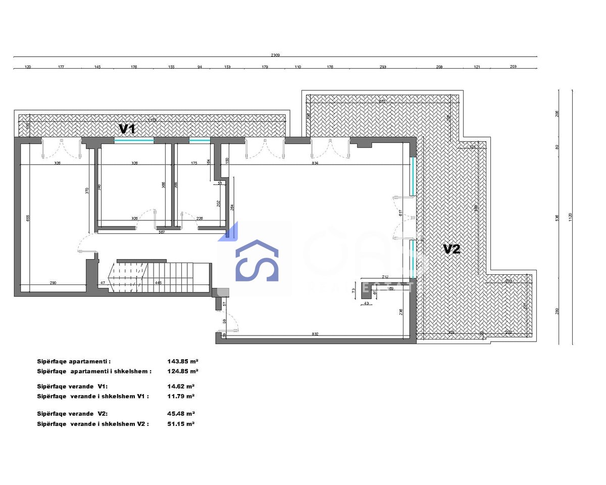
Ambjenti 1

Siperfaqe bruto : 143 m2
Siperfaqe neto: 125 m2
Veranda 1:14m2
Veranda 2:51m2

kati:4


Apartamenti organizohet ne:
⦁ 1 Dhome ndenje (+ kuzhine)
⦁ 2 Dhoma gjumi
⦁ Tualet
⦁ 2 Veranda

Ambienti 2
Siperfaqe bruto : 138 m2
Siperfaqe neto: 117 m2
Veranda :47m2


kati:5


Adresa:Prane Oxa
Cmimi:2500€ Te Dyja

Detaje të tjera

  • Viti i ndërtimit: 1990 - 2000
  • I pabanuar më parë

Kontaktoni

Na vjen keq, është shumë vonë për një telefonatë. Ju lutemi na kontaktoni përmes WhatsApp ose telefononi nesër nga ora 07:00 - 21:00.