Apartament ne shitje 2+1+2 ne Kamez
Apartament ne shitje 2+1+2 ne Kamez
Apartament ne shitje 2+1+2 ne Kamez
Apartament ne shitje 2+1+2 ne Kamez
Apartament ne shitje 2+1+2 ne Kamez
90,000 € (810 € / m²)
Për shitje 53 minuta më parë

Apartament ne shitje 2+1+2 ne Kamez

Rruga Berisha, Kamez

  • DSH-178220
  • 111 m2
  • 2 Dhoma gjumi
  • 2 Tualete
  • 1 Kuzhine
  • Kati 2
  • 33 Shikime
Përshkrimi

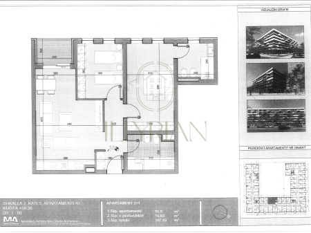
Shitet Apartament 2+1+2 ne Kamez
Siperfaqe totale: 112.83 m²
Kati i 2 banim
Organizohet :
- Sallon ndenje + Ambient Gatimi
- 2 Dhoma gjumi
- 2 Tualete
- 1 Ballkon
- Orientimi Veri-Lindje-Perendim
Ne ndertim e siper, aktualisht ne faze suvatimi.
Perfundon ne Qershor 2026
Cfare e karakterizon kete projekt eshte:
Muret Perimetrale te apartamenteve jane dopio mur me lesh guri ne mes Muret e brendshme jane me sistem
Knauf, Pllaka Gipsi, Dopio Pllake ne secilen ane dhe lesh guri ne mes per termoizolim dhe izolim akustık Fasada eshte e veshur me pilake dhe me termoizolim me EPS 8cm dhe peshe specifike 27 kg per m3 Pallati eshte l pajisur me dy ashensore dhe me generator emergjence ne menyre qe edhe kur nuk ka energji, ashensoret, pompat e ujit dhe dritat e shkalleve te punojne
Vendndodhja : Kamez ( Rruga Berisha )
Cmimi per shitje :90.000€ euro

Detaje të tjera

  • E pa mobiluar
  • I pabanuar më parë
  • Ka ashensor
  • 0m nga qendra

Vendndodhja në hartë

Kontaktoni

Llogaritësi i Kredisë
%
%
Vite
Muaji Payment Principali Interesi Totali i interesit Gjendja e mbetur

Na vjen keq, është shumë vonë për një telefonatë. Ju lutemi na kontaktoni përmes WhatsApp ose telefononi nesër nga ora 07:00 - 21:00.