Apartament 2+1 Modern në Kamëz 🏡
75,551 € (706 € / m²)
Për shitje 23 mars 2026

Apartament 2+1 Modern në Kamëz 🏡

Kamez, Kamez

  • DSH-178418
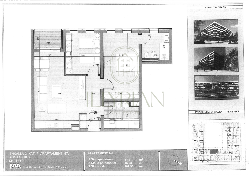
  • 107 m2
  • 2 Dhoma gjumi
  • 1 Tualet
  • Kati 5
  • 14 Shikime

Në Ndërtim

Përshkrimi

Ofrohet për shitje një apartament 2+1 me organizim të rregullt dhe hapësira të mirëshfrytëzuara, i pozicionuar në një nga zonat në zhvillim të Kamzës. Prona përbëhet nga një sallon i bollshëm së bashku me ambientin e gatimit, dy dhoma gjumi të ndriçuara natyralisht, dy tualete dhe një ballkon që ofron hapësirë shtesë relaksi.
Apartamenti karakterizohet nga planimetri funksionale, ndriçim i mirë gjatë gjithë ditës dhe orientim i favorshëm. Punimet janë realizuar me standard cilësor, duke ofruar komoditet dhe rehati për një jetesë familjare afatgjatë.
Ndodhet në një objekt të mirëadministruar, me akses të lehtë në rrugët kryesore, institucione arsimore, transport publik dhe shërbime të ndryshme. Zgjedhje ideale si për banim ashtu edhe për investim.

Detaje të tjera

  • E pa mobiluar
  • Viti i ndërtimit: 2026
  • Ka ashensor
  • 0m nga qendra

Vendndodhja në hartë

Kontaktoni

Llogaritësi i Kredisë
%
%
Vite
Muaji Payment Principali Interesi Totali i interesit Gjendja e mbetur

Na vjen keq, është shumë vonë për një telefonatë. Ju lutemi na kontaktoni përmes WhatsApp ose telefononi nesër nga ora 07:00 - 21:00.