Shitet,Apartament 2+1+2,Paskuqan,House Residence
Shitet,Apartament 2+1+2,Paskuqan,House Residence
127,517 € (1,301 € / m²)
Për shitje 27 mars 2026

Shitet,Apartament 2+1+2,Paskuqan,House Residence

Paskuqan, Kamez

  • DSH-183427
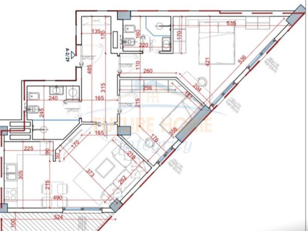
  • 98 m2
  • 2 Dhoma gjumi
  • 2 Tualete
  • 1 Kuzhine
  • Kati 6
  • 4 Shikime

Në Ndërtim

Përshkrimi

Shitet, Apartament 2+1+2, House Residence, Tiranë.
Apartamenti ndodhet në Paskuqan.
Informacion mbi apartamentin:
• Sipërfaqja bruto: 98.09 m2.
• Sipërfaqja neto: 80 m2.
• Kati 6.
• Fazë ndërtimi (suva).
Organizimi:
• Ambient ndenje.
• Ambient gatimi.
• 2 Dhoma gjumi.
• 2 Tualete.
• Ballkon.
Cilësime të tjera
• Orientim Veri-Lindje.
Për një vizitë në pronë na kontaktoni!

Detaje të tjera

  • E pa mobiluar
  • Ka ashensor
  • 0m nga qendra

Vendndodhja në hartë

Arsimi & Shkollat përreth

Gjimnazi Isa Boletini
Gjimnaz
120m
Kopshti Nr. 15
Kopsht
141m
Çerdhja Nr. 4, Hapi i pare
Çerdhe
222m
Distancat janë përllogaritur në vijë ajrore. Distanca e vërtetë në ecje mund të jetë ndryshe dhe pozicioni i pronës mund të ketë devijime të vogla

Kontaktoni

Llogaritësi i Kredisë
%
%
Vite
Muaji Payment Principali Interesi Totali i interesit Gjendja e mbetur

Na vjen keq, është shumë vonë për një telefonatë. Ju lutemi na kontaktoni përmes WhatsApp ose telefononi nesër nga ora 07:00 - 21:00.