SHESIM APARTAMENT 1+1 NË SQUARE VILLAGE,DHËRMI!
SHESIM APARTAMENT 1+1 NË SQUARE VILLAGE,DHËRMI!
SHESIM APARTAMENT 1+1 NË SQUARE VILLAGE,DHËRMI!
SHESIM APARTAMENT 1+1 NË SQUARE VILLAGE,DHËRMI!
SHESIM APARTAMENT 1+1 NË SQUARE VILLAGE,DHËRMI!
238,000 €
Për shitje 7 orë më parë

SHESIM APARTAMENT 1+1 NË SQUARE VILLAGE,DHËRMI!

Palasë, Vlore

  • DSH-191966
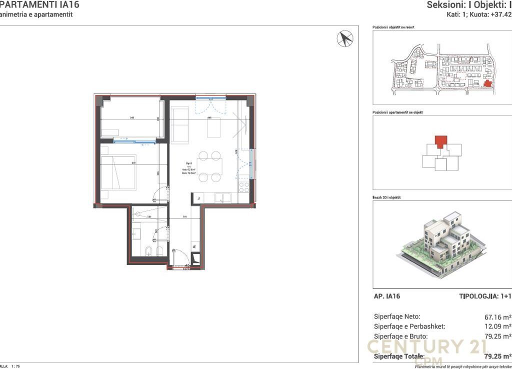
  • 79 m2
  • 1 Dhoma gjumi
  • 1 Tualet
  • Kati 1
  • 4 Shikime
Përshkrimi

Shesim apartament 1+1 në kompleksin turistik Village Square.
Kompleksi, aktualisht në fazën e ndërtimit, pritet të përfundojë në verën e 2028.
Ky resort është pozicionuar shumë prane detit dhe ofron një game apartamente dhe njësiteve të shërbimit.
Apartamenti eshte i organizuar ne ambientin e dites + 1 dhome gjumi + tualet
Për informacion të mëtejshëm, ju lutemi na kontaktoni
bot136834

Vendndodhja në hartë

Kontaktoni

Llogaritësi i Kredisë
%
%
Vite
Muaji Payment Principali Interesi Totali i interesit Gjendja e mbetur

Na vjen keq, është shumë vonë për një telefonatë. Ju lutemi na kontaktoni përmes WhatsApp ose telefononi nesër nga ora 07:00 - 21:00.