🏡 Shitet Apartament 1+1 – Astir, përballë Vilës L
🏡 Shitet Apartament 1+1 – Astir, përballë Vilës L
🏡 Shitet Apartament 1+1 – Astir, përballë Vilës L
97,340 €
Për shitje 2 ditë më parë

🏡 Shitet Apartament 1+1 – Astir, përballë Vilës L

Rruga Teodor Keko, Tirane

  • DSH-192288
  • 62 m2
  • 1 Dhoma gjumi
  • 1 Tualet
  • 1 Kuzhine
  • Kati 3
  • 3 Kate gjithsej
  • 2.8 km nga qendra
  • 6 Shikime
Përshkrimi

🏡 Shitet Apartament 1+1 – Astir, përballë Vilës L
📍 Zonë e zhvilluar dhe shumë e kërkuar, me akses të lehtë në rrugët kryesore dhe facilitetet e përditshme.
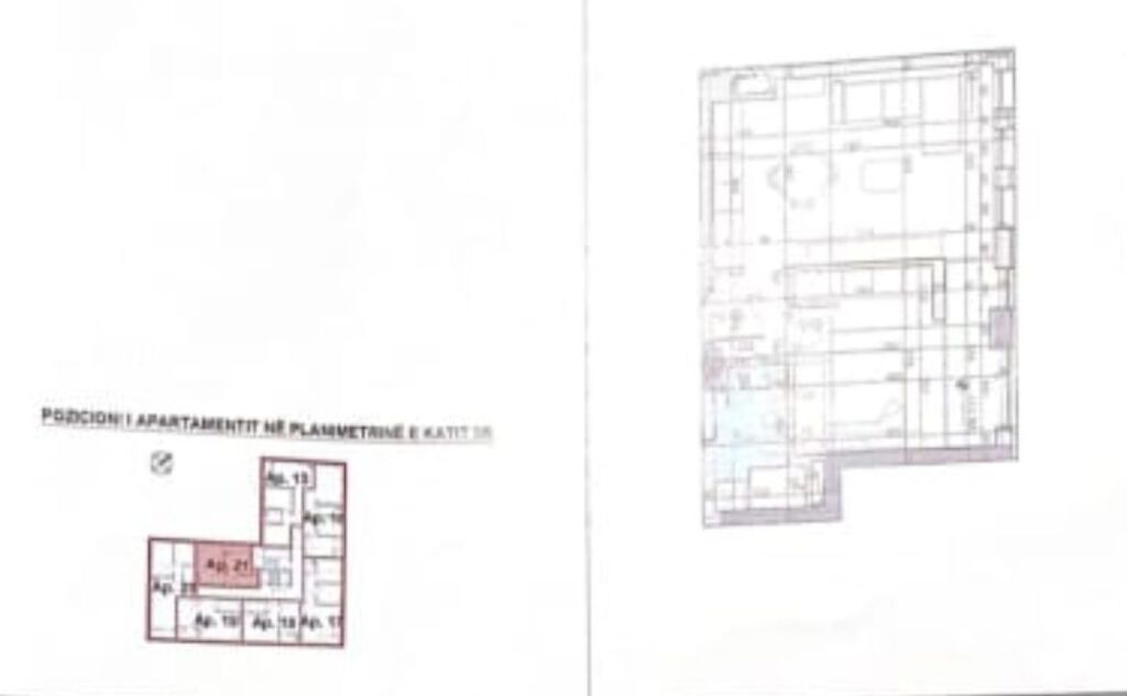
🏢 Kati: 3 banim
📐 Sipërfaqe: 62.8 m²
🛏️ Organizimi: Sallon + kuzhinë, 1 dhomë gjumi, tualet
🚗 Post parkimi: Opsional
🏗️ Faza: Në përfundim të punimeve
💰 Çmimi total: 97,340 €
✨ Mundësi shumë e mirë për banim ose investim në një nga zonat më dinamike të Tiranës.
📞 Për më shumë informacion ose vizitë në pronë, kontaktoni!

Transporti Publik

Stacione dhe linja të transportit publik pranë pronës

Më afër

Stacioni - Nexho Konomi

13A
Tirana e re
3A
Kashar
21 m larg
0 min në këmbë

Distancat janë përllogaritur në vijë ajrore. Distanca e vërtetë në ecje mund të jetë ndryshe dhe pozicioni i pronës mund të ketë devijime të vogla

Vendndodhja në hartë

Kontaktoni

Llogaritësi i Kredisë
%
%
Vite
Muaji Payment Principali Interesi Totali i interesit Gjendja e mbetur

Na vjen keq, është shumë vonë për një telefonatë. Ju lutemi na kontaktoni përmes WhatsApp ose telefononi nesër nga ora 07:00 - 23:00.