Shitet Apartament 3+1+2Wc+2Blk, Filigree Tower – Xhamllik, 321.700 Euro
Shitet Apartament 3+1+2Wc+2Blk, Filigree Tower – Xhamllik, 321.700 Euro
Shitet Apartament 3+1+2Wc+2Blk, Filigree Tower – Xhamllik, 321.700 Euro
321,700 € (2,314 € / m²)
Për shitje 07 prill 2026

Shitet Apartament 3+1+2Wc+2Blk, Filigree Tower – Xhamllik, 321.700 Euro

Filigree Tower, Tirane

  • DSH-194287
  • 139 m2
  • 3 Dhoma gjumi
  • 2 Tualete
  • 1 Kuzhine
  • Kati 14
  • 6 Shikime

Në Ndërtim

Përshkrimi

Karakteristikat e Prones:
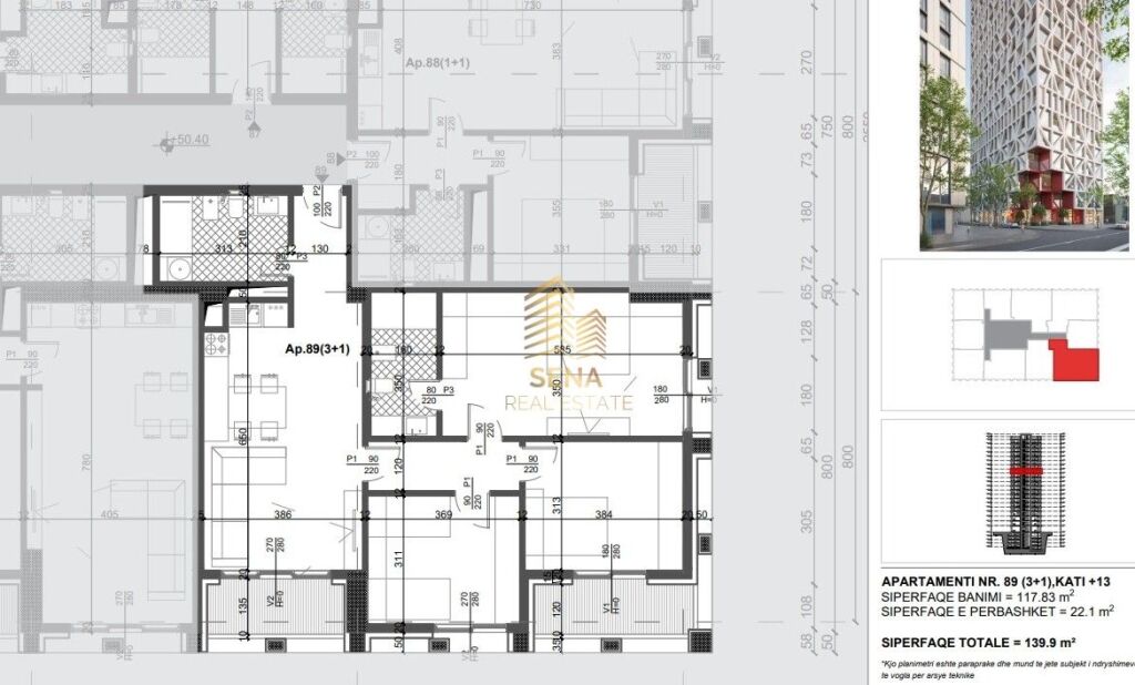
– Apartament 3+1
– Rruga Xhanfize Keko, Xhamllik
– Pallat ne ndertim
– Kati 13
– Siperfaqja e Bruto 139.9m²
– Siperfaqja e Neto 117.83m²
– Cmimi 321,700 Euro
Apartament 3+1 per shitje ne nje nga projektet me te reja dhe me perspektive ne zone, Filigree Tower ne Xhamllik, i pozicionuar ne katin e 13, qe ofron pamje te hapur dhe ndricim maksimal gjate gjithe dites. Ky eshte nje investim ideal, duke qene se pallati eshte aktualisht ne ndertim dhe pritet te perfundoje brenda 3 viteve te ardhshme, sipas standardeve bashkekohore te ndertimit.
Apartamenti ka nje organizim shume te rregullt dhe funksional, me siperfaqe te konsiderueshme dhe planimetri te menduar ne detaje. Ne hyrje ndodhet nje korridor shperndares qe ben lidhjen me te gjitha ambientet. Salloni i ndenjes eshte i bollshem dhe i integruar me kendin e gatimit dhe ngrenies, duke krijuar nje hapesire te madhe dhe komode per jetesen e perditshme.Ky ambient ka dalje direkte ne ballkon, i cili ofron pamje te lire dhe ajrosje natyrale.
Zona e nates eshte e organizuar ne menyre shume praktike, ku perfshihen tre dhoma gjumi. Dhoma matrimoniale eshte e bollshme dhe ka dhe nje tualet, ndersa dy dhomat e tjera jane ideale per femije apo si ambiente pune. Apartamenti disponon dy tualete te pozicionuara ne menyre strategjike per funksionalitet maksimal.
Nje nga avantazhet e kesaj prone eshte prania e dy ballkoneve, te cilat shtojne vlere ne jetesen e perditshme duke ofruar ndricim natyral gjete gjithe dites dhe pamje panoramike.
Filigree Tower do te karakterizohet nga arkitekture moderne, 4 kate parkim, 4 ashensore bashkekohore dhe administrim profesional. Zona e Xhamllikut eshte nje nga zonat me zhvillim te shpejte, me akses te lehte drejt qendres se qytetit, prane faciliteteve kryesore si shkolla, kopshte, markete, transport publik dhe cdo sherbim i nevojshem per nje jetese komode.
Ky apartament perben nje mundesi shume te mire investimi pasi cmimi aktual ne faze ndertimi eshte mjaft konkurrues krahasuar me vleren qe pritet te kete pas perfundimit te projektit. Ideale per familje qe kerkojne nje shtepi moderne, me hapesira te bollshme dhe pamje te bukur nga lartesia.

Per me shume informacione ose per nje vizite ne prone kontaktoni ne numrin e agjencise imobiliare!

A ka diçka të gabuar?

Çmim i rremë, mashtrim ose foto të rreme — na sinjalizoni.

Detaje të tjera

  • E pa mobiluar
  • Viti i ndërtimit: 1990 - 2000
  • 2km nga qendra

Transporti Publik

Stacione dhe linja të transportit publik pranë pronës

Më afër

Stacioni - Xhamlliku

11
Porcelan – Qendër
107m larg
2 min në këmbë

Distancat janë përllogaritur në vijë ajrore. Distanca e vërtetë në ecje mund të jetë ndryshe dhe pozicioni i pronës mund të ketë devijime të vogla

Vendndodhja në hartë

Arsimi & Shkollat përreth

Kopshti Nr. 29
Kopsht
142m
Çerdhja Nr. 15,Dielli
Çerdhe
272m
Kopshti Nr. 1
Kopsht
321m
Çerdhja Nr.56
Çerdhe
345m
Distancat janë përllogaritur në vijë ajrore. Distanca e vërtetë në ecje mund të jetë ndryshe dhe pozicioni i pronës mund të ketë devijime të vogla

Kontaktoni

Llogaritësi i Kredisë
%
%
Vite
Muaji Payment Principali Interesi Totali i interesit Gjendja e mbetur

Na vjen keq, është shumë vonë për një telefonatë. Ju lutemi na kontaktoni përmes WhatsApp ose telefononi nesër nga ora 07:00 - 21:00.