Apartament 1+1 ne Shitje ne Kamez
Apartament 1+1 ne Shitje ne Kamez
60,000 € (857 € / m²)
Për shitje 13 prill 2026

Apartament 1+1 ne Shitje ne Kamez

Rruga Teuta, Tirane

  • DSH-197709
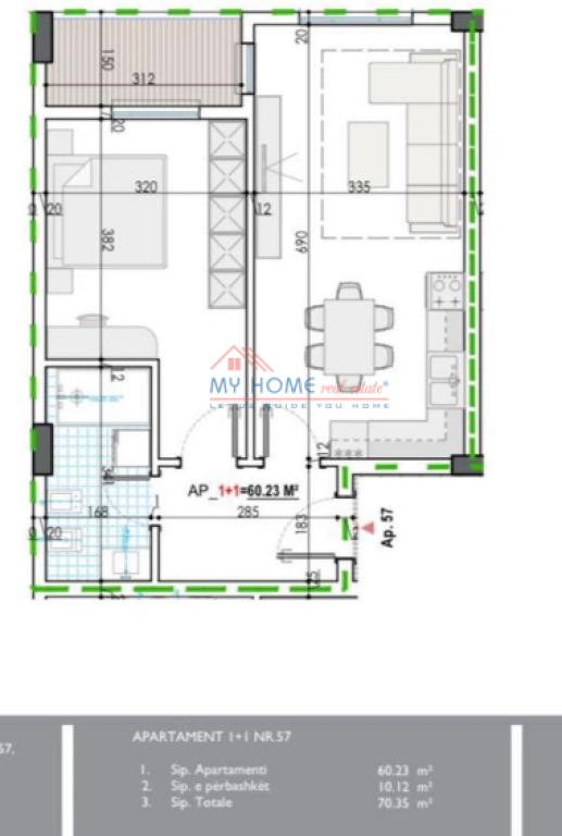
  • 70 m2
  • 1 Dhoma gjumi
  • 1 Tualet
  • 1 Kuzhine
  • Kati 5
  • 24 Shikime

Në Ndërtim

Përshkrimi

Kamez, Rruga Teuta, ne kompleksin Mehillaj, disponojme per shitje Apartament 1+1, me siperfaqe 70.35 m2, kati 5 banim, ne nje kompleks te ri ne ndertim, faze fasade. Organizohet ne soxhorno, dhome gjumi, tualet dhe ballkon.
Shitet 60 000 Euro

A ka diçka të gabuar?

Çmim i rremë, mashtrim ose foto të rreme — na sinjalizoni.

Detaje të tjera

  • E pa mobiluar
  • Viti i ndërtimit: 1990 - 2000
  • Ka ashensor

Vendndodhja në hartë

Kontaktoni

Llogaritësi i Kredisë
%
%
Vite
Muaji Payment Principali Interesi Totali i interesit Gjendja e mbetur

Na vjen keq, është shumë vonë për një telefonatë. Ju lutemi na kontaktoni përmes WhatsApp ose telefononi nesër nga ora 07:00 - 21:00.