Shitet apartament 1+1
82,000 € (1,744 € / m²)
Për shitje 13 orë më parë

Shitet apartament 1+1

Rruga Pasho Hysa, Tirane

  • DSH-200491
  • 47 m2
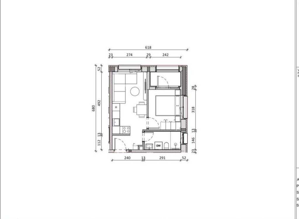
  • 1 Dhoma gjumi
  • 1 Tualet
  • 1 Kuzhine
  • Kati 8
  • 7 Shikime

Në Ndërtim

Përshkrimi

🏡 Shitet Apartament 1+1 tek Ali Demi (JO KREDI)
📍 Kompleksi Mangalem 21, Kadiu
🏢 Ndertim i Ri (perfundon per 3 muaj)
🪜 Kati 8
📐 Siperfaqe 47.7 m2
🧭 Orientim Veri-Lindje
🚾 Tualet me Dritare
🪟 Pamje e Lire
💶 Cmimi 82,000€

Detaje të tjera

  • 8 Kate gjithsej
  • Ballkon
  • Ka ashensor
  • 2.4km nga qendra

Transporti Publik

Stacione dhe linja të transportit publik pranë pronës

Më afër

Stacioni - Teki Tartari

10A
Materniteti i ri – Qendër
10m larg
0 min në këmbë

Distancat janë përllogaritur në vijë ajrore. Distanca e vërtetë në ecje mund të jetë ndryshe dhe pozicioni i pronës mund të ketë devijime të vogla

Vendndodhja në hartë

Kontaktoni

Llogaritësi i Kredisë
%
%
Vite
Muaji Payment Principali Interesi Totali i interesit Gjendja e mbetur

Na vjen keq, është shumë vonë për një telefonatë. Ju lutemi na kontaktoni përmes WhatsApp ose telefononi nesër nga ora 07:00 - 21:00.