Apartament 1+1 per shitje, Bulevardi Kashar,
Apartament 1+1 per shitje, Bulevardi Kashar,
82,000 € (1,154 € / m²)
Për shitje 6 orë më parë

Apartament 1+1 per shitje, Bulevardi Kashar,

SPAR Bulevardi Kasharit, tek pallatet e Iranianeve, Tirane

  • DSH-200840
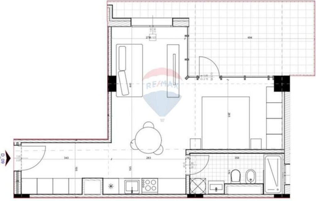
  • 71 m2
  • 1 Dhoma gjumi
  • 1 Tualet
  • 5 Shikime

Në Ndërtim

Përshkrimi

Apartament 1+1 per shitje ne projektin me te ri ne Bulevardin Kashar, Riverpark Residence
Projekti ndodhte ne faze grope.
Ndodhet në katin e trete dhe ofrohet për shitje me çmim 1150 € m2
Sipërfaqe bruto: 71.3 m²
Kati i 2-të
1 dhomë gjumi
1 dhomë ndenjeje
1 kuzhinë
1 tualet
Ballkon:
I përshtatshëm për banim familjar ose investim.
Ofrohet mundesi pagese me keste deri ne dy vite kohezgjatje.
Per me shume info na kontaktoni!

Detaje të tjera

  • Ballkon
  • Ka ashensor

Vendndodhja në hartë

Kontaktoni

Llogaritësi i Kredisë
%
%
Vite
Muaji Payment Principali Interesi Totali i interesit Gjendja e mbetur

Na vjen keq, është shumë vonë për një telefonatë. Ju lutemi na kontaktoni përmes WhatsApp ose telefononi nesër nga ora 07:00 - 21:00.